

DSV GmbH Dienstleistung - Sanierung - Verwaltung
Firma DSV GmbH
035 ···
Nr. anzeigenPreise & Kosten
Kaution
1485,00
Warum sehe ich diese Anzeige? – Du siehst diese Anzeige basierend auf Ihrer Navigation auf unserer Website und den Suchkriterien, die du verwendet hast.
Lage
Das Objekt befindet sich im Grünen an der Spree, dennoch zentrumsnah mit sehr guter Verkehrsanbindung. Sie erreichen die öffentlichen Verkehrsanbindungen und auch das Zentrum in 5 Gehminuten.
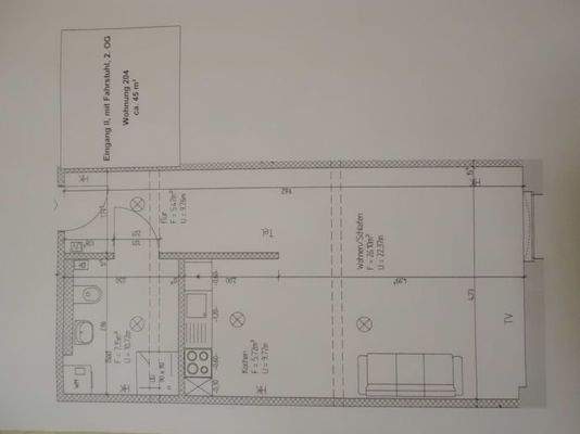
Die Wohnung
Wohnungslage
2. Geschoss
Bezug
nach Vereinbarung
Wohnanlage
Details
Objektbeschreibung
Objektbeschreibung
Nach Umbau und Komplettsanierung in den Jahren 2013 und 2014 wurden aus einem ehemaligen Fabrikgebäude schöne Wohnungen mit individuellen Grundrissen.
Raumaufteilung
Die Wohnung besteht aus einem Wohn- Schlafraum mit Kochnische und einem modern gefliesten Bad mit Dusche und...
Weitere Informationen
Besichtigungstermine
nach Terminvereinbarung.
Stichworte
Sonstiges: frei werdend
Anbieter der Immobilie

DSV GmbH Dienstleistung - Sanierung - Verwaltung

Online-ID: 2zrd84l
Finde Angebote wie dieses
Hier geht es zu unserem Impressum, den Allgemeinen Geschäftsbedingungen, den Hinweisen zum Datenschutz und nutzungsbasierter Online-Werbung.