
WiREG - Wirtschaftsförderungs- und Regionalentwicklungsgesellschaft Flensburg/Schleswig mbH
Herr Burkhard Otzen
046 ···
Nr. anzeigenPreise & Kosten
Provision für Käufer
provisionsfrei
Lage
Die Fläche liegt unmittelbar an der A7, Abfahrt Schleswig Schuby. Über die B201, die die Westküste mit der Ostküste verbindet, steht zudem eine schnelle Querverbindung innerhalb Schleswig-Holsteins zur Verfügung. Die A7 führt von hier aus in weniger als 30 Minuten nach Flensburg und zur dänischen Grenze. Kiel liegt ca. 45...
Das Grundstück
Kategorie
Gewerbe-Grundstück
Details
Objektbeschreibung
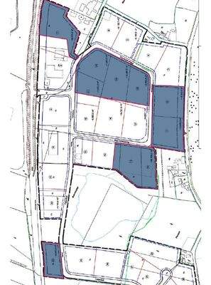
Im Gewerbepark Schleswig-Schuby werden interessante Gewerbeflächen mit direktem Autobahnanschluss angeboten. Mit der Autobahnabfahrt Schleswig-Schuby ist das Gebiet perfekt an die Hauptverkehrsachse zwischen Deutschland und Skandinavien angebunden und damit der ideale Standort für alle Unternehmen, die von Skandinavien auf...
Ausstattung
Im Gewerbepark Schleswig-Schuby werden großflächige Gewerbeeinheiten angeboten, die frei parzellierbar sind. Das Gebiet ist vorwiegend für überregional tätige Unternehmen angedacht, die einen positiven Arbeitsplatzeffekt haben und für die eine gute Autobahnanbindung wichtig ist. Einzelhandel ist nicht zugelassen.
Die...
Weitere Informationen
Sonstiges
*Grundstücksbasispreis ab 33 EUR/m² inkl. Erschließungskosten. Es sind Preiszuschläge in Abhängigkeit der Grundstücksnutzung möglich.
Betriebliche Investitionsvorhaben können unter bestimmten Voraussetzungen bezuschusst werden - sprechen Sie uns gerne an.
Alle Angaben in diesem Exposé basieren auf den vom...
Anbieter der Immobilie
WiREG - Wirtschaftsförderungs- und Regionalentwicklungsgesellschaft Flensburg/Schleswig mbH
Lise-Meitner-Str. 2, 24941 Flensburg
Online-ID: 2znc64p
Referenznummer: 10387
Finde Angebote wie dieses
Hier geht es zu unserem Impressum, den Allgemeinen Geschäftsbedingungen, den Hinweisen zum Datenschutz und nutzungsbasierter Online-Werbung.