
WiREG - Wirtschaftsförderungs- und Regionalentwicklungsgesellschaft Flensburg/Schleswig mbH
Herr Burkhard Otzen
046 ···
Nr. anzeigenPreise & Kosten
Provision für Käufer
provisionsfrei
Lage
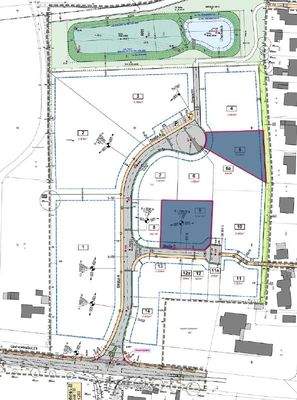
Das Gewerbegebiet Westerfeld liegt am westlichen Ortseingang von Satrup nördlich der Obdrupstraße an der Kreuzung Obdrupstraße (L23) / Schwienbruck. Die Flächen sind über die überörtliche Landesstraße 23 sofort erreichbar. Zur Autobahn A7 sind es ca. 15 km. Auch das etwa 20 km entfernte Oberzentrum Flensburg wird von hier aus...
Das Grundstück
Kategorie
Gewerbe-Grundstück
Details
Objektbeschreibung
Im Gewerbegebiet Westerfeld in der Gemeinde Mittelangeln Ortsteil Satrup stehen Gewerbegrundstücke ab ca. 1.200m² zur Verfügung. Das Gewerbegebiet richtet sich besonders an regional tätige Handwerksunternehmen und mittelständische Unternehmen aus der Region. Die Grundstücke sind frei parzellierbar und der Bebauungsplan macht...
Weitere Informationen
Sonstiges
*Die Gemeinde bietet die Grundstücke zum Preis von 42,50 €/m² an. Nicht im Kaufpreis enthalten sind die Anschlusskosten für Strom- und ggf. Gasversorgung und die Frischwasserversorgung sowie die Vermessungskosten.
Alle Angaben in diesem Exposé basieren auf den vom Eigentümer zur Verfügung gestellten...
Anbieter der Immobilie
WiREG - Wirtschaftsförderungs- und Regionalentwicklungsgesellschaft Flensburg/Schleswig mbH
Lise-Meitner-Str. 2, 24941 Flensburg
Online-ID: 2uwgv48
Referenznummer: 10557
Finde Angebote wie dieses
Hier geht es zu unserem Impressum, den Allgemeinen Geschäftsbedingungen, den Hinweisen zum Datenschutz und nutzungsbasierter Online-Werbung.