
BBI Bernd Barten Immobilien
Christiane Barten
016 ···
Nr. anzeigenPreise & Kosten
Kaution
3 Monatsmieten
Provision für Mieter
Beim Mietvertragsabschluss über ein von uns nachgewiesenen und/ oder vermittelten Gewerbeobjektes bezahlt der Mieter an uns eine Provision in Höhe von 3 Monatsmieten zzgl. MwSt. Weitere Informationen siehe Provisionshinweis.
Warum sehe ich diese Anzeige? – Du siehst diese Anzeige basierend auf Ihrer Navigation auf unserer Website und den Suchkriterien, die du verwendet hast.
Lage
Fast 12.000 Einwohner tragen maßgeblich zur Entwicklung und Anziehungskraft des Ortes bei. In der Ortsmitte befinden sich über 50 Geschäfte mit vielfältigen Einkaufsmöglichkeiten, zwei Banken und eine Sparkasse, soziale und kulturelle Einrichtungen, sowie Gastronomie mit Cafés, Imbiss und Restaurants.
Infrastruktur
Per...
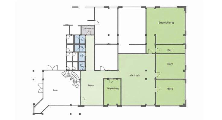
Büro-/Praxisfläche
Kategorie
Bürofläche
Baujahr
1988
Bezug
Sofort
Derzeitige Nutzung
frei
Geschoss
1. Geschoss
Energie & Heizung
Warum sehe ich diese Anzeige? – Du siehst diese Anzeige basierend auf Ihrer Navigation auf unserer Website und den Suchkriterien, die du verwendet hast.
Wärme
Strom
Energieausweistyp
Verbrauchsausweis
Gebäudetyp
Nicht-Wohngebäude
Baujahr laut Energieausweis
1988
Gültigkeit
25.04.2024 bis 25.04.2034
Endenergieverbrauch (Wärme)
134,30 kWh/(m²·a) - Warmwasser enthalten
Endenergieverbrauch (Strom)
33,10 kWh/(m²·a) - Warmwasser enthalten
Weitere Energiedaten
Energieträger
Gas
Heizungsart
Zentralheizung
Details
Objektbeschreibung
Beschreibung
Das Bürogebäude ist hochwertig ausgestattet. Die Büroräume im 1.OG sind sehr hell und garantieren ein angenehmes Arbeiten. Insgesamt sind bis zu 20 PKW Stellplätze im Aussenbereich und 1 Stellplatz im Parkhaus vorhanden. Der Bürobereich ist teilklimatisiert.
Der Mietpreis beläuft sich auf 10,00€/m² netto...
Ausstattung
Hochwertig
Weitere Informationen
Provisionshinweis
Beim Mietvertragsabschluss über ein von uns nachgewiesenen und/ oder vermittelten Gewerbeobjektes bezahlt der Mieter an uns eine Provision in Höhe von 3 Monatsmieten zzgl. der gesetzlichen Mehrwertsteuer (3,57 Nettomonatsmieten incl. MwSt.) für die Mietdauer unter 10 Jahren. Für Mietdauern ab 10 Jahre ist...
Dokumente
Anbieter der Immobilie
BBI Bernd Barten Immobilien
Im Höfle 9, 79194 Gundelfingen
Online-ID: 2tdn84s
Referenznummer: GU151/10
Finde Angebote wie dieses
Hier geht es zu unserem Impressum, den Allgemeinen Geschäftsbedingungen, den Hinweisen zum Datenschutz und nutzungsbasierter Online-Werbung.