

Immobilienkontor, Inh. Stefan Gardewin
Herr Stefan Gardewin
044 ···
Nr. anzeigenPreise & Kosten
Verhandlungsbasis
Provision für Käufer
3% des tatsächlichen Kaufpreises inkl. MwSt.
Lage
Das Einfamilienhaus ist im Komponistenviertel gelegen.
Das Haus
Kategorie
Einfamilienhaus
Baujahr
1980
Bezug
nach Vereinbarung
Energie & Heizung
Warum sehe ich diese Anzeige? – Du siehst diese Anzeige basierend auf Ihrer Navigation auf unserer Website und den Suchkriterien, die du verwendet hast.
Energieausweistyp
Verbrauchsausweis
Gebäudetyp
Wohngebäude
Baujahr laut Energieausweis
2023
Wesentliche Energieträger
Erdgas
Gültigkeit
03.12.2025 bis 02.12.2035
Effizienzklasse
C
Endenergieverbrauch
91,97 kWh/(m²·a) - Warmwasser enthalten
Details
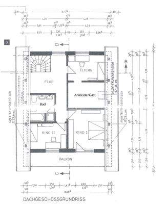
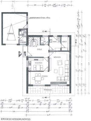
Objektbeschreibung
Dieses Einfamilienhaus besticht durch einen hervorragend gestalteten Grundriss. Auch eine Familie mit 3 Kindern findet hier ausreichend Platz. Die Eigentümer haben das Haus laufend renoviert und saniert. Das Badezimmer im Dachgeschoss beispielsweise ist 2022/2023 saniert worden. Die Ergas-Brennwert-Heizung von der Firma...
Weitere Informationen
Sonstiges
Bitte senden Sie uns zunächst eine Anfrage über das jeweilige Kontaktformular. Erst wenn uns Ihre Daten vollständig vorliegen, können wir Ihre Anfrage bearbeiten. Sie erhalten von uns sodann eine Antwortmail mit einem aussagekräftigen Exposé. Wenn Ihnen das Angebot und insbesondere die Lage der angebotenen...
Anbieter der Immobilie
Immobilienkontor, Inh. Stefan Gardewin
Sevelter Str. 62, 49661 Cloppenburg

Online-ID: 2pzx555
Referenznummer: VK 01/326.1
Finde Angebote wie dieses
Hier geht es zu unserem Impressum, den Allgemeinen Geschäftsbedingungen, den Hinweisen zum Datenschutz und nutzungsbasierter Online-Werbung.