
Wohnungsswap.de
Herr Tobias Jonnarth
Kontaktiere den Anbieter schriftlich, es ist keine Telefonnummer hinterlegt.
Preise & Kosten
zzgl. Nebenkosten
Warum sehe ich diese Anzeige? – Du siehst diese Anzeige basierend auf Ihrer Navigation auf unserer Website und den Suchkriterien, die du verwendet hast.
Die Wohnung
Wohnungslage
5. Geschoss
Details
Objektbeschreibung
Wir lösen unsere WG auf und suchen deshalb zwei kleinere Wohnungen.
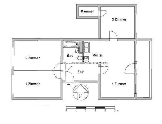
Unsere 79qm große Wohnung liegt 3 Minuten vom Volkspark Friedrichshain entfernt, hat einen Balkon, Badewanne und ein eigenes Kellerabteil. Die Küche und das Wohnzimmer sind räumlich nicht voneinander getrennt. (siehe Foto)
In unmittelbarer...
Anbieter der Immobilie
Wohnungsswap.de
Beedstraße 54, 40468 Düsseldorf
Herr Tobias Jonnarth
Dein Ansprechpartner
Kontaktiere den Anbieter schriftlich, es ist keine Telefonnummer hinterlegt.
Online-ID: 2pznp56
Referenznummer: 1502718
Finde Angebote wie dieses
Hier geht es zu unserem Impressum, den Allgemeinen Geschäftsbedingungen, den Hinweisen zum Datenschutz und nutzungsbasierter Online-Werbung.