NeWCoM GmbH - Detlef Wölk

Herr Thomas Nöthen

Doppelhaushälfte in Langerwehe - Individuell geplant, nachhaltig gebaut

€ 398.500
Kaufpreis
113,64 m²
Wohnfläche ca.
3
Zimmer
336 m²
Grundstücksfl. ca.

Der Anbieter dieses Objekts hat gegenüber der AVIV Germany GmbH als Betreiber dieses Online-Marktplatzes erklärt, nicht als Unternehmer im Sinne des § 1 KSchG zu handeln. Die im Verbraucherschutzrecht der Union verankerten Verbraucherrechte (insbesondere Informationspflichten und Rücktritts- bzw. Widerrufsrechte) finden auf den Vertrag zwischen dem Anbieter des Objekts und Ihnen (dem Interessenten) keine Anwendung.

Gewerblicher Anbieter

Der Anbieter dieses Objekts hat gegenüber der AVIV Germany GmbH als Betreiber dieses Online-Marktplatzes erklärt, als Unternehmer im Sinne des § 1 KSchG zu handeln.

AdresseStraße nicht freigegeben
52379 Langerwehe 
(Schlich)
Auf Karte ansehen

Preise & Kosten

Kaufpreis € 398.500

Provision für Käufer

Bitte beachte, das Angebot kann bei Vertragsabschluss die Zahlung einer Provision beinhalten. Weitere Informationen erhältst Du vom Anbieter.

Lage

Bitte beachten Sie, dass Grundstücke nur über einen kooperierenden Makler (§ 34c GewO) vermittelt werden. Wir möchten betonen, dass wir keine Grundstücksmakler sind. Unser Ziel ist es, Sie aktiv bei der Suche nach einem passenden Baugrundstück zu unterstützen - individuell nach Wunsch & Budget. Direkte Gespräche über...

Mehr anzeigen

Das Haus

Kategorie

Doppelhaushälfte

  • Zustand: projektiert
  • Gäste-WC

Energie & Heizung

Weitere Energiedaten

Haustyp

KfW 55

Details

Objektbeschreibung

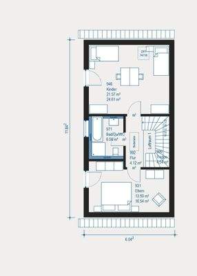
Diese projektiert geplante Doppelhaushälfte in Langerwehe bietet Ihnen mit 3,0 Zimmern auf 113,64 m² Wohnfläche ein individuell gestaltbares Zuhause, das ganz nach Ihren Wünschen und Vorstellungen realisiert wird. Auf zwei Etagen verteilen sich zwei gemütliche Schlafzimmer, ein Badezimmer sowie ein zusätzliches Gäste-WC...

Mehr anzeigen

Ausstattung

Zur hochwertigen Ausstattung gehören unter anderem eine moderne Luft-Wasser-Wärmepumpe, dreifach verglaste Fenster mit Aluminiumrollläden sowie eine Echtholztreppe, die dem Haus eine natürliche und elegante Note verleiht. Zusätzlich sind hochwertige Bodenbeläge, Tapeten, Sanitärobjekte, Innentüren, Zargen und Fliesen...

Mehr anzeigen

Weitere Informationen

Sonstiges
allkauf bedeutet für Sie maximale Sicherheit, kurze Lieferzeiten und garantierte Fertigstellung. Wir wissen, wie wichtig Planungssicherheit beim Hausbau ist - deshalb bieten wir Ihnen Festpreis-, Liefer- und Fertigstellungsgarantien, damit keine unerwarteten Mehrkosten entstehen und Ihr Haus termingerecht...

Mehr anzeigen

Anbieter der Immobilie

Partner

NeWCoM GmbH - Detlef Wölk

Militscher Straße 29, 53881 Euskirchen

user

Herr Thomas Nöthen

Dein Ansprechpartner

Anbieter-Website Anbieter-Profil Anbieter-Impressum

Online-ID: 2pzkc57

Referenznummer: 4168-322-kw08-154222

Finde Angebote wie dieses

imageimageimage

Hier geht es zu unserem Impressum, den Allgemeinen Geschäftsbedingungen, den Hinweisen zum Datenschutz und nutzungsbasierter Online-Werbung.