
Engel + Zybell Immobilienberatungs- und Vertriebs GmbH & Co. KG
Herr Heiko Zybell
+49 ···
Nr. anzeigenPreise & Kosten
Provision für Käufer
3,57 % brutto vom Kaufpreis
Lage
Das gehört zur Siedlung Eichkamp - eine Ortslage im Berliner Ortsteil Westend, der zum Bezirk Charlottenburg-Wilmersdorf gehört. Sie befindet sich zwischen der AVUS im Südosten und der Siedlung Heerstraße im Nordwesten. Nördlich wird das Gebiet durch das Messegelände begrenzt, südwestlich schließt sich der Grunewald an...
Das Haus
Kategorie
Doppelhaushälfte
Baujahr
1929
Energie & Heizung
Warum sehe ich diese Anzeige? – Du siehst diese Anzeige basierend auf Ihrer Navigation auf unserer Website und den Suchkriterien, die du verwendet hast.
Energieausweistyp
Bedarfsausweis
Gebäudetyp
Wohngebäude
Baujahr laut Energieausweis
2018
Gültigkeit
12.02.2026 bis 11.02.2036
Effizienzklasse
F
Endenergiebedarf
186,80 kWh/(m²·a)
Weitere Energiedaten
Haustyp
Massivhaus
Energieträger
Gas
Details
Objektbeschreibung
Das Haus mit dem Baujahr 1929 befindet sich auf einem derzeit ca. 880 m² großen Grundstück. Ein Teilfläche von ca. 250 m² kann abgetrennt und mit einem kleineren Einfamilienhaus bebaut werden. Das Haus ist Teil einer Hauszeile auf einem real geteiltem Grundstück mit Garten. Straßenseitig befinden sich zwei Eingangsbereiche...
Ausstattung
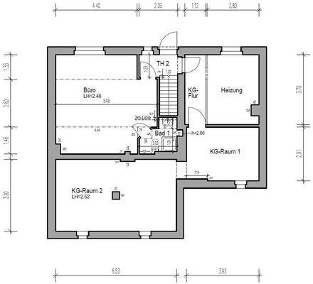
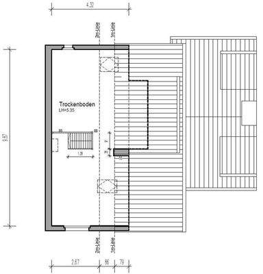
Das Haus verfügt über: Souterrain (Untergeschoss), Erdgeschoss mit großzügiger und moderner Einbauküche (Hochparterre), 1. Obergeschoss, 2. Obergeschoss und einem noch nicht ausgebautem Dachgeschoss (Trockenboden). Im Souterrain befindet sich ein großes Zimmer mit Duschbad sowie die Technik- und Lagerflächen. Die Wohnfläche...
Preisinformation
1 Stellplatz
Weitere Informationen
Sonstiges
Für das Baugrundstück mit ca. 250 qm inkl. Bodenuntersuchung und Vorplanung haben wir einen Kaufpreis von 275.000 € angesetzt, für die Doppelhaushälfte einen Kaufpreis von 1.100.000 €. Es wird
ein Gesamtverkauf bevorzugt, wobei auch das Haus und das Grundstück einzeln erworben werden können.
Anbieter der Immobilie

Engel + Zybell Immobilienberatungs- und Vertriebs GmbH & Co. KG
Online-ID: 2pzhs53
Referenznummer: 6165 (1/6165)
Finde Angebote wie dieses
Hier geht es zu unserem Impressum, den Allgemeinen Geschäftsbedingungen, den Hinweisen zum Datenschutz und nutzungsbasierter Online-Werbung.