
Evernest GmbH
Laura Wiltfang
+49 ···
Nr. anzeigenPreise & Kosten
Provision für Käufer
3.57 inkl. MwSt.
Bei Abschluss eines notariellen Kaufvertrages ist eine Käuferprovision vom Käufer in Höhe von 3.57 % inkl. MwSt. aus dem Kaufpreis fällig.
Lage
Die Immobilie befindet sich in ruhiger Wohnlage im Ortsteil Ihrhove der Gemeinde Westoverledingen im Landkreis Leer. Besonders hervorzuheben ist die attraktive Sackgassenendlage am Rennschloot, die ein sehr ruhiges und nahezu verkehrsfreies Wohnumfeld bietet.
Trotz der angenehmen Ruhe überzeugt die Lage gleichzeitig...
Das Haus
Kategorie
Reihenmittelhaus
Baujahr
1990
Energie & Heizung
Warum sehe ich diese Anzeige? – Du siehst diese Anzeige basierend auf Ihrer Navigation auf unserer Website und den Suchkriterien, die du verwendet hast.
Energieausweistyp
Verbrauchsausweis
Gebäudetyp
Wohngebäude
Effizienzklasse
E
Endenergieverbrauch
150,10 kWh/(m²·a)
Details
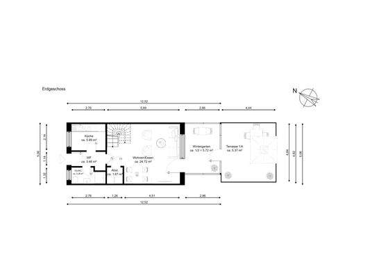
Objektbeschreibung
Herzlich willkommen in Ihrem Raumwunder:
Dieses Reihenmittelhaus überzeugt mit ca. 75,88 m² Wohnfläche, zusätzlicher Nutzfläche im ausgebauten Dachgeschoss (ca. 8,5 m²) sowie einem hellen Sommergarten.
Es befindet sich in einer kleinen Reihenhausanlage mit insgesamt sechs Einheiten und besticht durch eine...
Ausstattung
ca. 75,9 m² Wohnfläche + ausgebautes Dachgeschoss
Sommergarten (2019) & Terrasse
Einbauküche, 2 Duschbäder
2 Schlafzimmer + Studio (Büro/Gäste)
Modernisiert (u. a. Dachfenster, Dämmung)
Abstellraum & Glasfaseranschluss
Weitere Informationen
Stichworte
Garage vorhanden, Nutzfläche: 8,50 m², Anzahl der Schlafzimmer: 3, Anzahl der Badezimmer: 2, Anzahl Terrassen: 1, Gartenfläche: 20,00 m², 3 Etagen
Anbieter der Immobilie
Online-ID: 2pzhp53
Referenznummer: L-BGWDG68
Finde Angebote wie dieses
Hier geht es zu unserem Impressum, den Allgemeinen Geschäftsbedingungen, den Hinweisen zum Datenschutz und nutzungsbasierter Online-Werbung.