
Allkauf Haus GmbH
Frau Katrin Geißler
034 ···
Nr. anzeigenPreise & Kosten
Provision für Käufer
provisionsfrei
Lage
Hinweis zum Grundstück
Dein Haus entsteht entweder auf einem bereits bestehenden Baugrundstück oder auf einem Grundstück, das sich noch in der Planungsphase befindet.
Das Grundstück erwirbst du dabei direkt vom Eigentümer.
Bitte beachte:
Aus rechtlichen Gründen dürfen wir dir Grundstücksdaten nur im Rahmen...
Das Haus
Kategorie
Mehrfamilienhaus
Baujahr
2026
Energie & Heizung
Warum sehe ich diese Anzeige? – Du siehst diese Anzeige basierend auf Ihrer Navigation auf unserer Website und den Suchkriterien, die du verwendet hast.
Weitere Energiedaten
Haustyp
Niedrigenergiehaus
Heizungsart
Fußbodenheizung, Luft-/Wasser-Wärmepumpe
Details
Objektbeschreibung
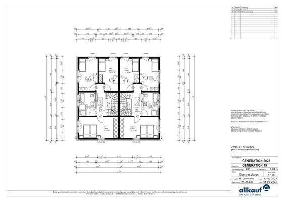
Im GENERATION 19 erwarten dich zwei großzügige Wohneinheiten, die du flexibel nutzen kannst - sei es, um in unmittelbarer Nähe zu deinen Liebsten zu wohnen, oder um eine Einheit zu vermieten und so die Finanzierung zu unterstützen.
Jede Wohneinheit erstreckt sich über zwei Vollgeschosse und verfügt über drei...
Ausstattung
Für zeitgemäßen Wohnkomfort ist dein Haus umfassend ausgestattet. Eine energieeffiziente Luft-Wasser-Wärmepumpe, eine kontrollierte Be- und Entlüftungsanlage mit Wärmerückgewinnung sowie ein durchdachtes Heizungs- und Elektropaket sind bereits im Leistungsumfang enthalten. Auch die komplette Haustechnik inklusive aller...
Weitere Informationen
Sonstiges
Mit allkauf Haus wird dein Traum vom Eigenheim Wirklichkeit - individuell, sicher und ganz nach deinen Vorstellungen.
Persönliche Beratung: Wir hören dir zu und begleiten dich von Anfang an.
Individuelle Planung: Gestalte den Grundriss so, wie er zu deinem Leben passt.
Erfahrung &...
Anbieter der Immobilie
Allkauf Haus GmbH
Gletschersteinstr. 53, 04299 Leipzig
Online-ID: 2pzh952
Referenznummer: 4207-364-kw13-Generation_19-136223
Finde Angebote wie dieses
Hier geht es zu unserem Impressum, den Allgemeinen Geschäftsbedingungen, den Hinweisen zum Datenschutz und nutzungsbasierter Online-Werbung.