
Muhs Immobilien OHG
Frau Katharina Klimmek
004 ···
Nr. anzeigenPreise & Kosten
Provision für Käufer
2,98 % inkl. MwSt. inkl. MwSt.
Käuferprovision von 2,98 % des Kaufpreises inkl. der gesetzlichen. MwSt.Käuferprovision von 2,98 % des Kaufpreises inkl. der gesetzlichen. MwSt.
Lage
Stockelsdorf liegt unmittelbar an der nördlichen Stadtgrenze zur Hansestadt Lübeck und bildet mit dieser und der östlich angrenzenden Stadt Bad Schwartau eine Agglomeration.
Das Haus liegt in einer ruhigen Wohngegend, fußläufig ist das Zentrum nach rd. 900 m zu erreichen. Kindergarten und Schulen sind in der...
Das Haus
Kategorie
Reihenmittelhaus
Baujahr
2001
Bezug
01.05.2026
Energie & Heizung
Warum sehe ich diese Anzeige? – Du siehst diese Anzeige basierend auf Ihrer Navigation auf unserer Website und den Suchkriterien, die du verwendet hast.
Energieausweistyp
Bedarfsausweis
Gebäudetyp
Wohngebäude
Baujahr laut Energieausweis
2001
Wesentliche Energieträger
GAS
Gültigkeit
bis 01.04.2036
Effizienzklasse
D
Endenergiebedarf
117,83 kWh/(m²·a)
Weitere Energiedaten
Haustyp
Massivhaus
Energieträger
Gas
Details
Objektbeschreibung
Hier findet jedes Familienmitglied seine Privatsphäre . Zusätzlich zu den 2-3 Kinderzimmer sind hier noch ein oder zwei Home Offices möglich. Insgesamt stehen ganze 7 Zimmer zur Wohngestaltung zur Verfügung.
Im Erdgeschoss ist Wohn- und Lebenstreffpunkt: Küche, Esszimmer, Wohnzimmer und Duschbad.
Im Obergeschoss...
Ausstattung
Die Immobilie präsentiert sich in einem sehr gepflegten Zustand.
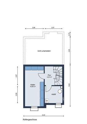
Erdgeschoss
- helles Wohnzimmer mit Zugang zur Terrasse
- große Terrasse in S/W Lage
- Esszimmer im offenen Wohnstil
- Küche mit EBK und Platz für einen kleinen Esstisch
- Duschbad hell gefliest
- Fliesenboden im Flur, Esszimmer und...
Preisinformation
1 Stellplatz
Weitere Informationen
Sonstiges
Weitere ausführliche Details und zusätzliche Fotos erhalten Sie in unserem Exposé.
* Aufgrund unserer Nachweispflicht senden wir Ihnen das Exposé gerne zu, sobald uns Ihre vollständigen Kontaktdaten vorliegen.*
Wir wissen, dass ein Hauskauf neben den vielen Formalitäten oft auch eine stressige und...
Anbieter der Immobilie
Online-ID: 2pzgk57
Referenznummer: 2029-T
Finde Angebote wie dieses
Hier geht es zu unserem Impressum, den Allgemeinen Geschäftsbedingungen, den Hinweisen zum Datenschutz und nutzungsbasierter Online-Werbung.