
Schantl ITH Immobilientreuhand GmbH
Herr Christopher Wischenbart, BSc
+43 ···
Nr. anzeigenPreise & Kosten
Provision für Käufer
5.760,00 € inkl. 20% USt.
Lage
Das Grundstück befindet sich in Rabnitz bei St. Radegund, einer ruhigen und naturnahen Wohnlage im beliebten Grazer Umland. Die Umgebung überzeugt durch ihre idyllische Landschaft sowie den herrlichen Schöcklblick und weiten Fernblick.
Dank der sonnigen Westausrichtung genießen Sie zahlreiche Sonnenstunden und...
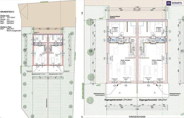
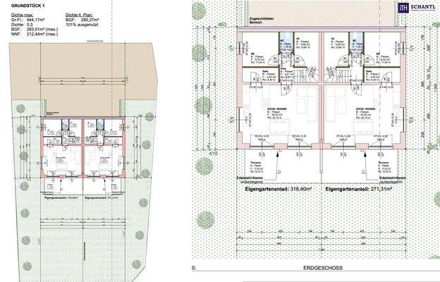
Das Grundstück
Details
Objektbeschreibung
TRAUMHAFTES BAUGRUNDSTÜCK IN 8062 RABNITZ - SONNIGE LAGE MIT HERRLICHEM AUSBLICK!
Willkommen in Rabnitz - einem Ort, an dem Sie Ihren Wohntraum inmitten der wunderschönen steirischen Landschaft verwirklichen können.
Dieses attraktive Baugrundstück mit einer großzügigen Fläche von 944 m² bietet...
Weitere Informationen
Stichworte
Bundesland: Steiermark
Anbieter der Immobilie

Schantl ITH Immobilientreuhand GmbH
Messendorferstraße 71a, 8041 Graz
Online-ID: 2pzft57
Referenznummer: OBGC2026040309412377919e9aa95df
Finde Angebote wie dieses
Günstige Immobilienfinanzierung einfach online berechnen
Persönliches Angebot berechnenWarum sehe ich diese Werbung? – Du siehst diese Werbung basierend auf Deiner Navigation auf unserer Website und der von Dir verwendeten Suchkriterien.
Diese Werbung wird bezahlt von durchblicker
Werbung melden
Hier geht es zu unserem Impressum, den Allgemeinen Geschäftsbedingungen, den Hinweisen zum Datenschutz und nutzungsbasierter Online-Werbung.