
Crozilla.com
PARENTIUM Real Estate
+38 ···
Nr. anzeigenPreise & Kosten
Provision für Käufer
Bitte beachte, das Angebot kann bei Vertragsabschluss die Zahlung einer Provision beinhalten. Weitere Informationen erhältst Du vom Anbieter.
Das Haus
Baujahr
2023
Details
Objektbeschreibung
Istrien, Porec
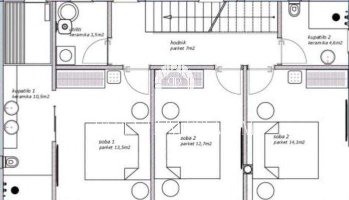
Zum Verkauf steht eine ausgezeichnete Designer-Doppelhaushälfte mit einer Gesamtfläche von 111 m, einem Swimmingpool und einer Sauna in wunderschöner Lage, umgeben von Olivenhainen und viel Grün.
Im Erdgeschoss gibt es eine Eingangshalle, die zu einem großzügigen offenen Raum führt, in dem sich...
Weitere Informationen
Stichworte
Anzahl der Schlafzimmer: 3, Anzahl der Badezimmer: 3, 1 Etagen
Anbieter der Immobilie
Crozilla.com
Nova cesta 60, 10000 ZAGREB
Online-ID: 2pzee58
Referenznummer: 19667026_1
Finde Angebote wie dieses
Hier geht es zu unserem Impressum, den Allgemeinen Geschäftsbedingungen, den Hinweisen zum Datenschutz und nutzungsbasierter Online-Werbung.