
allkauf haus GmbH
Herr Vitali Stettinger
+49 ···
Nr. anzeigenPreise & Kosten
Provision für Käufer
provisionsfrei
Lage
Die Lage in Nidderau Windecken besticht durch eine perfekte Mischung aus ruhigem Wohngebiet und hervorragender Infrastruktur. Eine Grundschule befindet sich in unmittelbarer Nähe, was besonders für Familien mit Kindern von Vorteil ist. Die Wohngegend bietet zudem vielfältige Freizeitmöglichkeiten und eine angenehme...
Das Haus
Kategorie
Doppelhaushälfte
Baujahr
2027
Energie & Heizung
Warum sehe ich diese Anzeige? – Du siehst diese Anzeige basierend auf Ihrer Navigation auf unserer Website und den Suchkriterien, die du verwendet hast.
Weitere Energiedaten
Haustyp
KfW 40
Heizungsart
Fußbodenheizung, Luft-/Wasser-Wärmepumpe
Details
Objektbeschreibung
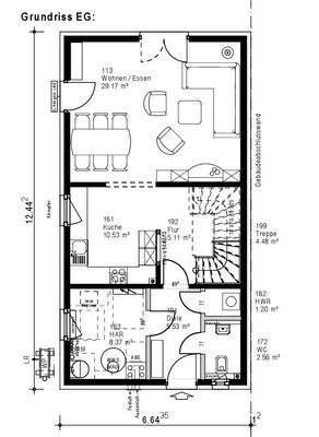
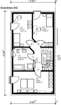
Diese projektierten Doppelhaushälften in Nidderau Windecken bieten Ihnen ein individuell nach Ihren Wünschen gestaltbares Zuhause mit 6 Zimmern auf einer großzügigen Wohnfläche von 189 m² verteilt auf 3 Etagen. Das 258 m² große Grundstück liegt in einem attraktiven Wohngebiet, ideal für Familien, die Wert auf eine ruhige und...
Ausstattung
Die Bodenbeläge aus Fliesen und Laminat verbinden Ästhetik mit Funktionalität: Fliesen sind besonders pflegeleicht und langlebig, während Laminat für eine warme und behagliche Atmosphäre sorgt. Beheizt wird Ihr neues Zuhause umweltfreundlich und effizient mit einer modernen Wärmepumpe, die für niedrigen Energieverbrauch und...
Weitere Informationen
Sonstiges
allkauf steht für maximale Sicherheit, kurze Lieferzeiten und garantierte Fertigstellung. Mit dem Dienstleistungspaket Free Time für Vielbeschäftigte, das bereits im Preis enthalten ist, übernimmt allkauf für Sie alle wichtigen Arbeiten wie Trockenbau, Estrich, Sanitär, Heizung und Elektroinstallation.
Zu...
Anbieter der Immobilie
allkauf haus GmbH
Ludwig Erhard Str. 2, 68162 Bad Vilbel
Online-ID: 2pz9g54
Referenznummer: 3019-13-kw11-77711 MKK FT
Finde Angebote wie dieses
Hier geht es zu unserem Impressum, den Allgemeinen Geschäftsbedingungen, den Hinweisen zum Datenschutz und nutzungsbasierter Online-Werbung.