NeWCoM GmbH - Detlef Wölk

Herr Malte Hellwig

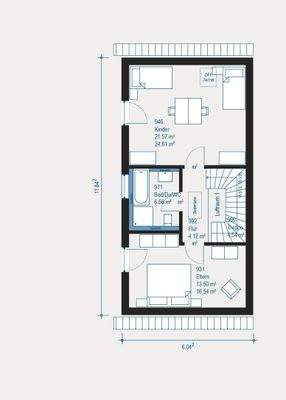
Neubau-DHH mit exklusivem Grundstück in Aachen-Laurensberg - 137 m²

€ 667.999
Kaufpreis
137,50 m²
Wohnfläche ca.
4
Zimmer
440 m²
Grundstücksfl. ca.

Der Anbieter dieses Objekts hat gegenüber der AVIV Germany GmbH als Betreiber dieses Online-Marktplatzes erklärt, nicht als Unternehmer im Sinne des § 1 KSchG zu handeln. Die im Verbraucherschutzrecht der Union verankerten Verbraucherrechte (insbesondere Informationspflichten und Rücktritts- bzw. Widerrufsrechte) finden auf den Vertrag zwischen dem Anbieter des Objekts und Ihnen (dem Interessenten) keine Anwendung.

Gewerblicher Anbieter

Der Anbieter dieses Objekts hat gegenüber der AVIV Germany GmbH als Betreiber dieses Online-Marktplatzes erklärt, als Unternehmer im Sinne des § 1 KSchG zu handeln.

AdresseStraße nicht freigegeben
52072 Aachen 
(Laurensberg)
Auf Karte ansehen

Preise & Kosten

Kaufpreis € 667.999

Provision für Käufer

Das Grundstücksangebot (Verkauf/Vermittlung) wird von einem privaten Anbieter bereitgestellt.

Lage

Zweite Reihe, kein Durchgangsverkehr - Ihre Kinder spielen vor der Haustür, nicht an der Straße. Das Grundstück liegt an der Roermonder Straße in Aachen-Laurensberg, ruhig und geschützt. Direkt vor der Tür entsteht ein eigener Spielplatz, nur für die vier Familien der Nachbarschaft. Über die B57 sind Sie in wenigen Minuten im...

Mehr anzeigen

Das Haus

Kategorie

Doppelhaushälfte

Baujahr

2027

  • Zustand: projektiert
  • Gäste-WC
  • barrierefrei

Energie & Heizung

Weitere Energiedaten

Haustyp

KfW 55

Heizungsart

Fußbodenheizung, Luft-/Wasser-Wärmepumpe

Details

Objektbeschreibung

Sie suchen schon lange nach einem Haus mit passendem Grundstück in Laurensberg? Gefunden!

Diese Doppelhaushälfte entsteht auf einem von nur vier exklusiven Grundstücken in Aachen-Laurensberg, die nicht öffentlich vermarktet werden. Das 440 m² große Grundstück ist gesichert - Sie müssen nicht suchen, nicht warten...

Mehr anzeigen

Ausstattung

Heizkosten, die Sie fast vergessen lassen - dank Wärmepumpentechnik und kontrollierter Be- und Entlüftung mit Wärmerückgewinnung. Dreifach verglaste Fenster mit Aluminiumrollläden halten im Winter die Wärme drin und im Sommer die Hitze draußen. Die lichte Raumhöhe von 2,75 m sorgt auf allen drei Etagen für ein spürbar...

Mehr anzeigen

Weitere Informationen

Sonstiges
Bei diesem Neubau-Projekt handelt es sich um eine Doppelhaushälfte auf einem exklusiven, nicht öffentlich vermarkteten Grundstück in Aachen-Laurensberg. Der Preis von 667.999 EUR beinhaltet das 440 m² große Grundstück, die Bodenplatte und das malerfertig übergebene Haus. Kauf- und Baunebenkosten fallen zusätzlich...

Mehr anzeigen

Anbieter der Immobilie

Partner

NeWCoM GmbH - Detlef Wölk

Militscher Straße 29, 53881 Euskirchen

user

Herr Malte Hellwig

Dein Ansprechpartner

Anbieter-Website Anbieter-Profil Anbieter-Impressum

Online-ID: 2pz9558

Referenznummer: 4264-DO01BPFT260404

Finde Angebote wie dieses

imageimageimage

Hier geht es zu unserem Impressum, den Allgemeinen Geschäftsbedingungen, den Hinweisen zum Datenschutz und nutzungsbasierter Online-Werbung.