
McMakler GmbH
Ihr McMakler Team
080 ···
Nr. anzeigenPreise & Kosten
Provision für Käufer
Die Provision i.H.v. 3,57 % inkl. MwSt. ist mit Kaufvertragsbeurkundung fällig, sofern der Verkaufspreis über 83.000,00 € liegt.
Liegt der Verkaufspreis dagegen bei/unter 83. Weitere Informationen siehe Provisionshinweis.
Lage
Lage: Attraktive Vorstadtlage in Berlin-Buckow bietet ruhige Atmosphäre mit Top-Anbindung
Bildung und Betreuung: Familienfreundliches Wohnen mit Kindergarten und Schule in fußläufiger Entfernung
Nahversorgung: Schnelle Erreichbarkeit von Anlaufstellen wie Supermarkt, Apotheke und Bankfiliale
Anbindung: Gut erreichbar...
Das Haus
Kategorie
Reihenmittelhaus
Baujahr
1987
Bezug
30.09.2026
Energie & Heizung
Warum sehe ich diese Anzeige? – Du siehst diese Anzeige basierend auf Ihrer Navigation auf unserer Website und den Suchkriterien, die du verwendet hast.
Energieausweistyp
Verbrauchsausweis
Gebäudetyp
Wohngebäude
Baujahr laut Energieausweis
1987
Wesentliche Energieträger
Gas
Effizienzklasse
B
Endenergieverbrauch
54,20 kWh/(m²·a)
Weitere Energiedaten
Energieträger
Gas
Heizungsart
Zentralheizung
Details
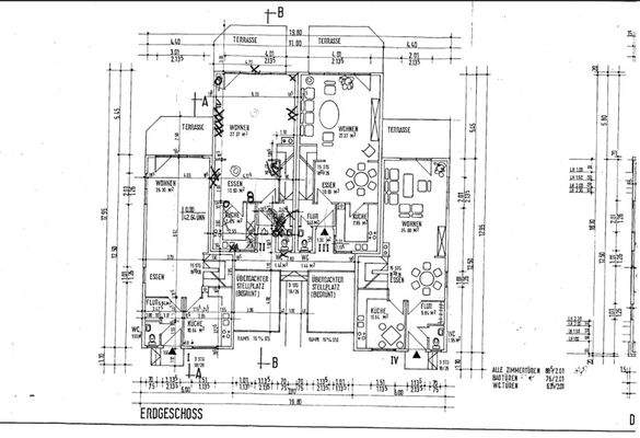
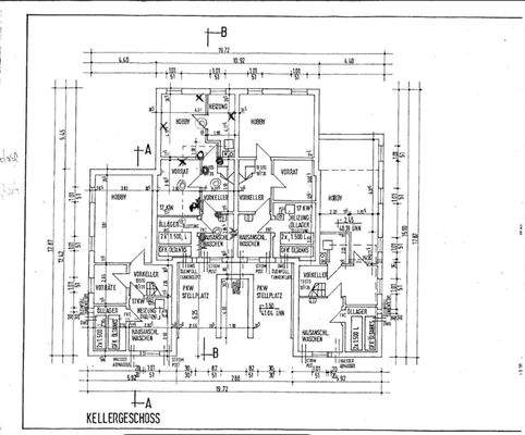
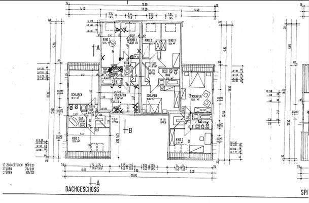
Objektbeschreibung
Objektnr: 1068348
Willkommen in Ihrem neuen Zuhause in Berlin-Buckow! Dieses charmante Reihenmittelhaus bietet auf rund 120 m² Wohnfläche und 5 Zimmern genügend Raum für die ganze Familie - kombiniert mit einer ruhigen, grünen Lage, die dennoch eine hervorragende Anbindung an die Berliner Innenstadt bietet.
Im...
Ausstattung
+ In ruhiger Umgebung in Vorstadtlage in Buckow
+ ca. 120m² verteilt auf 5 Zimmer und 4 Kellerräume
+ Tolle Außenbereiche: Der Garten auf ca. 320 m² großzügigem Grund lädt zum Verweilen ein
+ PKW Stellplatz in der Auffahrt
Weitere Informationen
Provisionshinweis
Die Provision i.H.v. 3,57 % inkl. MwSt. ist mit Kaufvertragsbeurkundung fällig, sofern der Verkaufspreis über 83.000,00 € liegt.
Liegt der Verkaufspreis dagegen bei/unter 83.000,00 €, ist die fest vereinbarte Mindestprovision i.H.v. mind. 5.950,00 € inkl. MwSt. mit Kaufvertragsbeurkundung fällig...
Anbieter der Immobilie
McMakler GmbH
Am Postbahnhof 17, 10243 Berlin
Online-ID: 2pz4l52
Referenznummer: 043feaf1aa
Finde Angebote wie dieses
Hier geht es zu unserem Impressum, den Allgemeinen Geschäftsbedingungen, den Hinweisen zum Datenschutz und nutzungsbasierter Online-Werbung.