
Metis GmbH
Magdalena Zwicker
041 ···
Nr. anzeigenPreise & Kosten
Provision für Käufer
provisionsfrei
Lage
Das Reihenhaus befindet sich in Mölln, einer charmanten Stadt in Schleswig-Holstein. Mölln ist bekannt für seine historische Altstadt und die idyllische Lage zwischen mehreren Seen. Die Anbindung an den öffentlichen Nahverkehr ist ausgezeichnet, der Hauptbahnhof ist nur 5 Kilometer entfernt. Die Autobahn ist in 10 Kilometern...
Das Haus
Kategorie
Reihenmittelhaus
Baujahr
2026
Energie & Heizung
Warum sehe ich diese Anzeige? – Du siehst diese Anzeige basierend auf Ihrer Navigation auf unserer Website und den Suchkriterien, die du verwendet hast.
Weitere Energiedaten
Haustyp
KfW 55
Heizungsart
Fußbodenheizung, Luft-/Wasser-Wärmepumpe
Details
Objektbeschreibung
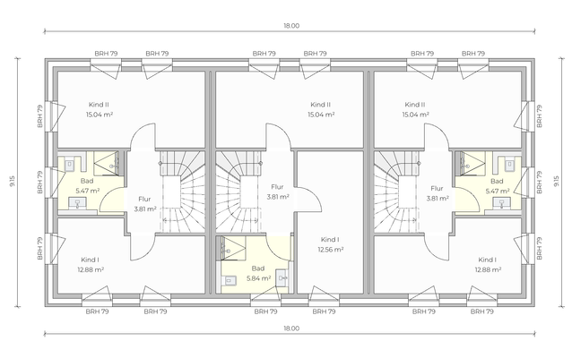
Willkommen in Ihrem neuen Zuhause! Dieses moderne Neubau-Reihenendhaus besticht durch eine durchdachte Raumaufteilung auf drei Etagen und bietet eine Gesamtwohnfläche von 108 m².
Das Erdgeschoss verfügt über ein großzügiges Wohnzimmer mit offener Küche, ideal für gesellige Abende mit Familie und Freunden.
Im...
Ausstattung
Das ist bei METIS für Ihr KfW-55 Effizienzhaus immer inklusive
Mit METIS Haus profitieren Sie von einem Komplettpaket, das nicht nur modernste Bauweise, sondern auch höchste Energieeffizienz sicherstellt. Alles, was Sie für Ihr KfW-55 Traumhaus benötigen, ist bereits enthalten:
Sicherheit & Bauqualität
-...
Preisinformation
1 Stellplatz
Weitere Informationen
Stichworte
Stellplatz vorhanden, Anzahl der Schlafzimmer: 3, Anzahl der Badezimmer: 3, Anzahl Terrassen: 1, Anzahl der Wohneinheiten: 1, Bundesland: SH, 3 Etagen
Anbieter der Immobilie
Metis GmbH
Osterfeld 8 -10, 24649 Fuhlendorf
Online-ID: 2pz4k57
Referenznummer: P2042
Finde Angebote wie dieses
Hier geht es zu unserem Impressum, den Allgemeinen Geschäftsbedingungen, den Hinweisen zum Datenschutz und nutzungsbasierter Online-Werbung.