
Gruska Immobilien & Verwaltung GmbH
Herr J. Michael Gruska
036 ···
Nr. anzeigenPreise & Kosten
Kaution
780
Warum sehe ich diese Anzeige? – Du siehst diese Anzeige basierend auf Ihrer Navigation auf unserer Website und den Suchkriterien, die du verwendet hast.
Lage
Die Wohnung befindet sich in der Stolzestr. 5 in Eisenach, in einer gefragten und gut angebundenen Wohngegend nahe dem Stadtzentrum.
Die Lage vereint urbanes Leben mit angenehmer Ruhe – ideal für alle, die kurze Wege schätzen, ohne auf Wohnqualität verzichten zu wollen.
Sämtliche Einrichtungen des täglichen...
Die Wohnung
Wohnanlage
Energie & Heizung
Warum sehe ich diese Anzeige? – Du siehst diese Anzeige basierend auf Ihrer Navigation auf unserer Website und den Suchkriterien, die du verwendet hast.
Energieausweistyp
Verbrauchsausweis
Gebäudetyp
Wohngebäude
Baujahr laut Energieausweis
1934
Wesentliche Energieträger
Erdgas
Gültigkeit
bis 25.09.2028
Effizienzklasse
D
Endenergieverbrauch
102,77 kWh/(m²·a)
Weitere Energiedaten
Energieträger
Gas
Heizungsart
Zentralheizung
Details
Objektbeschreibung
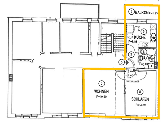
Diese gepflegte und gut geschnittene 2-Zimmer-Wohnung mit ca. 52 m² Wohnfläche überzeugt durch einen durchdachten Grundriss und praktische Details – ideal für Singles, Paare oder alle, die zentrales und komfortables Wohnen schätzen. Die Wohnung liegt im 2. Obergeschoss rechts.
Die Wohnung befindet sich in einem soliden...
Ausstattung
-Wohnfläche: ca. 52 m²
-Zimmer: 2
-Küche mit Balkonzugang
-Bad mit Dusche und WC
-Flur
-Balkon
-Kellerabteil
-Innenhof-Stellplatz optional
-Hausmeisterservice inklusive
Weitere Informationen
Dieses Angebot ist freibleibend und unverbindlich. Irrtum und Zwischenverwertung bleiben vorbehalten. Es wurde auf der Grundlage der vom Eigentümer zur Verfügung gestellten Unterlagen, sowie dessen Angaben, ohne Gewähr gefertigt. Bitte geben Sie bei Exposéanfragen immer Ihre vollständige Anschrift und/oder Telefonnummer an...
Dokumente
Anbieter der Immobilie
Gruska Immobilien & Verwaltung GmbH
Karlsplatz 20, 99817 Eisenach
Online-ID: 2pz4456
Finde Angebote wie dieses
Hier geht es zu unserem Impressum, den Allgemeinen Geschäftsbedingungen, den Hinweisen zum Datenschutz und nutzungsbasierter Online-Werbung.