
Spektrum Sales & Consulting GmbH
Herr Marcel Güntner
052 ···
Nr. anzeigenDieses Angebot ist Teil des Neubauprojekts
Leostraße 26
Preise & Kosten
Provision für Käufer
provisionsfrei
Lage
Das Mehrfamilienhaus in der Leostraße 26 befindet sich in einer ruhigen und gepflegten Wohngegend von Hövelhof. Die Gemeinde liegt im Kreis Paderborn in Nordrhein-Westfalen und vereint ländliche Idylle mit einer sehr guten Anbindung an das städtische Leben - ideal für Familien, Paare und Senioren...
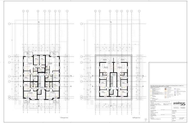
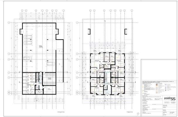
Die Wohnung
Kategorie
Penthouse
Wohnungslage
2. Geschoss
Bezug
2026
Wohnanlage
Das Neubauprojekt
Energie & Heizung
Warum sehe ich diese Anzeige? – Du siehst diese Anzeige basierend auf Ihrer Navigation auf unserer Website und den Suchkriterien, die du verwendet hast.
Energieausweistyp
Bedarfsausweis
Gebäudetyp
Wohngebäude
Details
Objektbeschreibung
Willkommen in deinem neuen Zuhause.
Viel Platz, großer Garten mit Terrasse & ruhige zentrale Lage
Willst du hoch hinaus, modern wohnen - und dabei nachhaltig investieren? Dann ist dieses einzigartige Penthouse mit ca. 80 m² Wohnfläche, großer Dachterrasse und Aufzug direkt zur Wohnung genau das Richtige für...
Ausstattung
Das Mehrfamilienhaus in der Leostraße 26 überzeugt durch eine moderne Ausstattung, die Wohnkomfort, Funktionalität und stilvolles Design perfekt miteinander verbindet. Die zehn Eigentumswohnungen sind hell und großzügig geschnitten - mit einem Fokus auf offene Grundrisse und eine angenehme Wohnatmosphäre.
Wohnqualität...
Weitere Informationen
Sonstiges
Finanzielle ?Highlights
??
Bis zu 155.716 € Abschreibung in nur 4-6 Jahren bei dieser Wohnung?
Steuerlicher Vorteil durch Sonder- + Degressive Abschreibungen für Kapitalanleger?
Sonderabschreibung von 5 % jährlich für 4 Jahre auf die gesamten Anschaffungskosten
Degressive AfA von 5 % jährlich...
Anbieter der Immobilie
Spektrum Sales & Consulting GmbH
Jüdendamm 2, 33129 Delbrück
Online-ID: 2pz2553
Referenznummer: LE2.09
Finde Angebote wie dieses
Hier geht es zu unserem Impressum, den Allgemeinen Geschäftsbedingungen, den Hinweisen zum Datenschutz und nutzungsbasierter Online-Werbung.