
ohne-makler.net - Immobilien selbst vermarkten
Privat von D. Guther
Kontaktiere den Anbieter schriftlich, es ist keine Telefonnummer hinterlegt.
Preise & Kosten
Provision für Käufer
provisionsfrei
Lage
Die sonnige Einheit befindet sich in der Herdbruckerstraße - einer der renommiertesten Adressen in der Ulmer Altstadt, in bester Innenstadtlage. Direkt an der geschichtlich bedeutungsvollen Stadtmauer gelegen, mit unverbaubarem Blick auf die Donau, zentral und doch ruhig.
Die unmittelbare Nähe zur Ulmer...
Die Wohnung
Wohnungslage
3. Geschoss
Bezug
sofort
Wohnanlage
Energie & Heizung
Warum sehe ich diese Anzeige? – Du siehst diese Anzeige basierend auf Ihrer Navigation auf unserer Website und den Suchkriterien, die du verwendet hast.
Energieausweistyp
Verbrauchsausweis
Gebäudetyp
Wohngebäude
Endenergieverbrauch
79,00 kWh/(m²·a) - Warmwasser enthalten
Weitere Energiedaten
Energieträger
Fernwärme
Heizungsart
Fußbodenheizung
Details
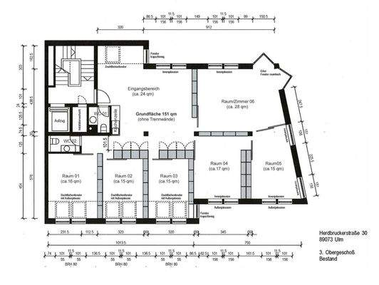
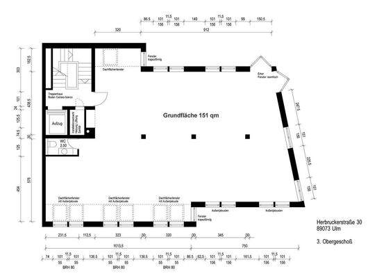
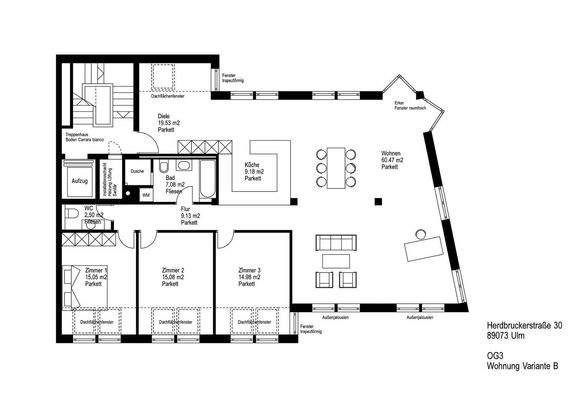
Objektbeschreibung
Die Räumlichkeiten im 3. OG eines modernen Mehrparteienhauses aus dem Jahr 1982 bieten mit einer Nutzfläche von 151 m² und großzügigen Fensterfronten nach Süden und Norden eine lichtdurchflutete, inspirierende Umgebung mit herrlichem Blick auf die Donau, die Stadtmauer und die Altstadt. Der Zugang erfolgt bequem über einen...
Ausstattung
Keller, Fahrstuhl, Einbauküche, Gäste-WC, Teppichboden
Bemerkungen:
. offener Grundriss mit freien Gestaltungsmöglichkeiten
. Aufzug
. Kellerräume
. Einbauküchenzeile mit Kühlschrank und Spülmaschine
. 2 separate WCs
. Fensterfronten mit Nord-, Süd- und Ostausrichtung und Blick auf die Donau
...
Weitere Informationen
Sonstiges
Heizungsart: Fußbodenheizung
Energieträger: Fernwärme
Makleranfragen nicht erwünscht. Nach § 7 UWG sind unaufgeforderte Kontaktaufnahmen durch Makler ohne ausdrückliche Einwilligung des Empfängers verboten!
ohne-makler (OM) ist weder Anbieter noch Vermittler der Immobilie. OM betreibt eine...
Anbieter der Immobilie
ohne-makler.net - Immobilien selbst vermarkten
Humboldtstr. 25 A, 21509 Glinde
Privat von D. Guther
Dein Ansprechpartner
Kontaktiere den Anbieter schriftlich, es ist keine Telefonnummer hinterlegt.
Online-ID: 2pyz252
Referenznummer: 439179
Finde Angebote wie dieses
Hier geht es zu unserem Impressum, den Allgemeinen Geschäftsbedingungen, den Hinweisen zum Datenschutz und nutzungsbasierter Online-Werbung.