Schwabenhaus Ingolstadt - Samka Graf - Handelsvertretung für die Schwabenhaus GmbH

Samka Graf

Kontaktiere den Anbieter schriftlich, es ist keine Telefonnummer hinterlegt.

Grundstück und Haus - alles dabei

€ 415.672
Kaufpreis
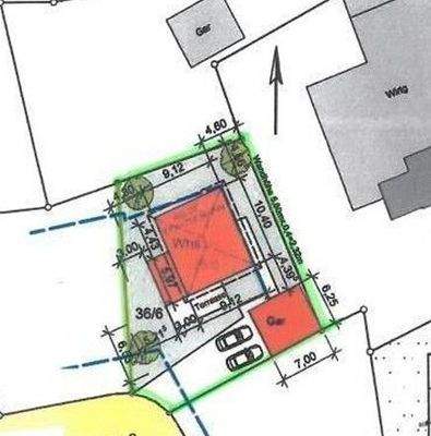
131,10 m²
Wohnfläche ca.
3
Zimmer
549 m²
Grundstücksfl. ca.

Der Anbieter dieses Objekts hat gegenüber der AVIV Germany GmbH als Betreiber dieses Online-Marktplatzes erklärt, nicht als Unternehmer im Sinne des § 1 KSchG zu handeln. Die im Verbraucherschutzrecht der Union verankerten Verbraucherrechte (insbesondere Informationspflichten und Rücktritts- bzw. Widerrufsrechte) finden auf den Vertrag zwischen dem Anbieter des Objekts und Ihnen (dem Interessenten) keine Anwendung.

Gewerblicher Anbieter

Der Anbieter dieses Objekts hat gegenüber der AVIV Germany GmbH als Betreiber dieses Online-Marktplatzes erklärt, als Unternehmer im Sinne des § 1 KSchG zu handeln.

AdresseStraße nicht freigegeben
78126 Königsfeld im Schwarzwald 
(Erdmannsweiler)
Auf Karte ansehen

Preise & Kosten

Kaufpreis € 415.672

Provision für Käufer

3,57 % inkl. MwSt auf den Grundstücksanteil inkl. MwSt.
Gilt nur für den Grundstücksanteil; Haus provisionsfrei. Grundstückspreis variabel, genaue Berechnung vor Maklervertragsabschluss.

Lage

Lage
Königsfeld im Schwarzwald liegt im südwestlichen Baden-Württemberg, etwa 12 Kilometer nordwestlich von Villingen-Schwenningen im Schwarzwald-Baar-Kreis. Das Baugrundstück befindet sich im Ortsteil Erdmannsweiler, am Ostabhang des Schwarzwaldes, etwa 4 Kilometer nordöstlich des Hauptortes Königsfeld in einer ruhigen...

Mehr anzeigen

Das Haus

Kategorie

Einfamilienhaus

  • Zustand: Neubau, projektiert
  • Gäste-WC

Energie & Heizung

Weitere Energiedaten

Heizungsart

Fußbodenheizung

Details

Objektbeschreibung

Dieses Hausangebot basiert auf der Ausbaustufe fast vollendet. Änderungen sind natürlich möglich.

Ausstattung

THINK WHITE - Do it yourself.

- Maximale Individualität - für kreative Köpfe & Macher
- Ideal für Eigenleistung - handwerkliches Geschick spart bares Geld
- Optimierte Grundrisse - smarte Wohnkonzepte für flexible Gestaltung
- Hochwertige Bauweise - modern, nachhaltig & energieeffizient
-...

Mehr anzeigen

Weitere Informationen

Sonstiges
Vereinbare einen persönlichen Beratungstermin, um über Deinen Haustraum und das angebotene Objekt zu sprechen.
Bitte beachte, dass die dargestellten Bilder und Grundrisse nur beispielhaft sind und unter Umständen Sonderbauteile enthalten, die nicht im angegebenen Preis enthalten sind.

Hab außerdem bitte...

Mehr anzeigen

Anbieter der Immobilie

Partner
user

Samka Graf

Dein Ansprechpartner

Kontaktiere den Anbieter schriftlich, es ist keine Telefonnummer hinterlegt.

Anbieter-Website Anbieter-Profil Anbieter-Impressum

Online-ID: 2pyy253

Referenznummer: WB-34116-Königsfeld im Sc

Finde Angebote wie dieses

imageimageimage

Hier geht es zu unserem Impressum, den Allgemeinen Geschäftsbedingungen, den Hinweisen zum Datenschutz und nutzungsbasierter Online-Werbung.