
Raiffeisenbank Regenstauf eG Immobilienabteilung
Herr/Frau Dominik Tadic
094 ···
Nr. anzeigenPreise & Kosten
Provision für Käufer
Bitte beachte, das Angebot kann bei Vertragsabschluss die Zahlung einer Provision beinhalten. Weitere Informationen erhältst Du vom Anbieter.
Lage
Im nur 2 km entfernten Regenstauf erwartet Sie neben einem breiten Angebot an Lebensmittelgeschäften, Supermärkten und Apotheken auch eine Vielzahl von Einzelhändlern und Restaurants.
Das absolute Highlight ist aber zweifelsohne die kurze Entfernung zum Fluss Regen: Nach nur 150 m Fußweg können Sie die schönsten...
Das Haus
Kategorie
Reihenmittelhaus
Baujahr
2023
Energie & Heizung
Warum sehe ich diese Anzeige? – Du siehst diese Anzeige basierend auf Ihrer Navigation auf unserer Website und den Suchkriterien, die du verwendet hast.
Energieausweistyp
Bedarfsausweis
Gebäudetyp
Wohngebäude
Baujahr laut Energieausweis
2022
Wesentliche Energieträger
LUFTWP
Gültigkeit
bis 13.07.2032
Effizienzklasse
A+
Weitere Energiedaten
Heizungsart
Fußbodenheizung, Luft-/Wasser-Wärmepumpe
Details
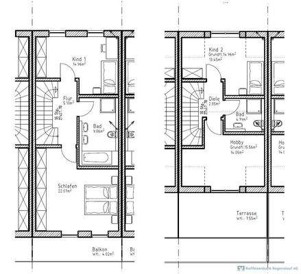
Objektbeschreibung
Modernes und komfortables Reihenmittelhaus im Ortsteil Laub in Zeitlarn.
Das Wohnhaus wurde im Jahr 2023 energieeffizient in Massivbauweise fertiggestellt. Der Erstbezug erfolgte im Jahr 2024.
Derzeit ist das Reihenmittelhaus zu einer Nettokaltmiete in Höhe von 1860,00 EUR inkl. Garage und Stellplatz...
Ausstattung
- KFW 55 Standard
- Garage und PKW-Stellplatz inklusive
- Einbauküche inklusive
- Fußbodenheizung
- hochwertige Sanitärausstattung
- Elektrische Rollläden
- offener Wohn-/Essbereich
- 2 Bäder
- 1 Gäste WC mit Urinal
- Dreifachverglaste Kunststofffenster
- Terrasse mit...
Preisinformation
1 Stellplatz
1 Garagenstellplatz
Weitere Informationen
Sonstiges
Es gelten unsere Allgemeinen Geschäftsbedingungen.
Alle Angaben in diesem Exposé wurden sorgfältig und so vollständig wie möglich erstellt und basieren ausschließlich auf Informationen des Eigentümers. Wir übernehmen daher keine Gewährleistung für die Vollständigkeit und Richtigkeit dieser Angaben.
Die...
Anbieter der Immobilie
Raiffeisenbank Regenstauf eG Immobilienabteilung
Marktplatz 8, 93128 Regenstauf
Online-ID: 2pywm52
Referenznummer: DT-2026-00054
Finde Angebote wie dieses
Hier geht es zu unserem Impressum, den Allgemeinen Geschäftsbedingungen, den Hinweisen zum Datenschutz und nutzungsbasierter Online-Werbung.