
P.S.W. Immobiliengesellschaft mbH
Herr Peter Scannewin
+49 ···
Nr. anzeigenPreise & Kosten
Kaution
750,00
Warum sehe ich diese Anzeige? – Du siehst diese Anzeige basierend auf Ihrer Navigation auf unserer Website und den Suchkriterien, die du verwendet hast.
Lage
In der historischen Freiberger Altstadt hat sich der Charme der Jahrhunderte bewahrt. Faszinierende Bauwerke, eine Vielzahl von interessanten Sehenswürdigkeiten sowie zahlreiche kleine, liebevoll geführte Läden, Restaurants, Cafés und Kneipen laden zum Entdecken, Flanieren und Verweilen ein.
Der mittelalterliche...
Die Wohnung
Wohnungslage
Erdgeschoss
Energie & Heizung
Warum sehe ich diese Anzeige? – Du siehst diese Anzeige basierend auf Ihrer Navigation auf unserer Website und den Suchkriterien, die du verwendet hast.
Weitere Energiedaten
Energieträger
Gas
Heizungsart
Zentralheizung
Details
Objektbeschreibung
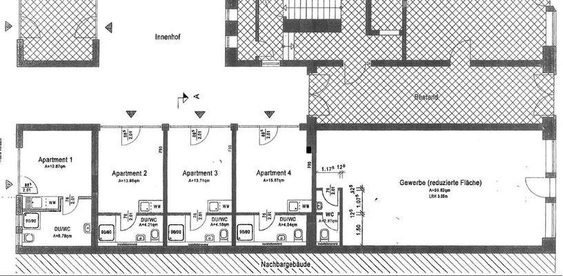
Das Appartement 03 verfügt über eine Wohnfläche von insgesamt ca. 18 m², davon entfallen etwa 13 m² auf den Wohnbereich.
Die ruhige Lage im Innenhof des Hauses sowie eine große Fensterfront sorgen für ein ansprechendes Wohngefühl, der Blick geht zum Gartenbereich.
Im Wohnbereich ist ein Vinylboden verlegt. Das...
Weitere Informationen
Sonstiges
Gern können Sie einen Besichtigungstermin mit uns vereinbaren - per Mail unter info@p-s-w.de oder telefonisch 0351 4906699.
Wir freuen uns auf Ihre Rückmeldung.
Stichworte
Bundesland: Sachsen, Lage im Bau: hinten, Lage im Mischgebiet
Anbieter der Immobilie

P.S.W. Immobiliengesellschaft mbH
Aussiger Straße 8, 01277 Dresden
Online-ID: 2pyw653
Referenznummer: POS7APP03SP
Finde Angebote wie dieses
Hier geht es zu unserem Impressum, den Allgemeinen Geschäftsbedingungen, den Hinweisen zum Datenschutz und nutzungsbasierter Online-Werbung.