
Gauder Immobilien GmbH
Herr Christoph Gauder
004 ···
Nr. anzeigenPreise & Kosten
Provision für Käufer
3,57 % vom Kaufpreis inkl. 19% Mehrwertsteuer
Lage
Das Mehrfamilienhaus befindet sich in zentraler Lage von Landsberg am Lech, einer der begehrtesten Städte in der Region. Die Innenstadt ist fußläufig erreichbar, sodass alle wichtigen Einrichtungen des täglichen Bedarfs wie Supermärkte, Geschäfte, Restaurants, Ärzte und Apotheken in unmittelbarer Nähe liegen. Landsberg am...
Das Haus
Kategorie
Mehrfamilienhaus
Baujahr
1914
Details
Objektbeschreibung
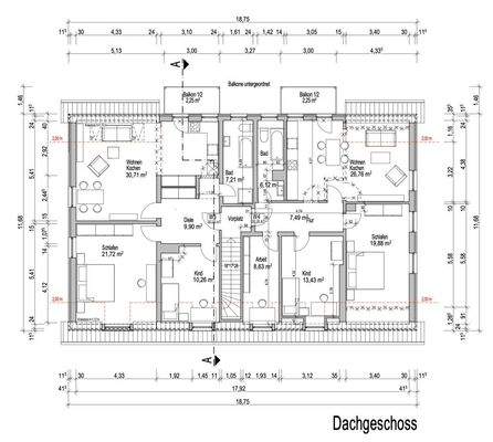
Das zum Verkauf stehende Mehrfamilienhaus befindet sich in zentraler Lage von Landsberg am Lech und bietet eine attraktive Investitionsmöglichkeit. Das Objekt erstreckt sich über zwei Etagen und umfasst insgesamt vier Wohneinheiten, die sich auf eine Wohnfläche von ca. 345 m² verteilen. Alle Wohneinheiten sind aktuell...
Ausstattung
Eine seit Oktober 2024 vorliegende Baugenehmigung ermöglicht die Aufteilung des bestehenden Mehrfamilienhauses in moderne Eigentumswohnungen. Im Zuge dieser Genehmigung ist ebenfalls der Anbau von Balkonen an jede Wohneinheit gestattet, was den Wohnkomfort erheblich steigert und den zukünftigen Immobilienwert erhöht.
Dank...
Weitere Informationen
Stichworte
3 Etagen
Anbieter der Immobilie
Gauder Immobilien GmbH
Gualbert - Wälder - Straße 1, 86853 Langerringen
Online-ID: 2pysh57
Referenznummer: 2487
Finde Angebote wie dieses
Hier geht es zu unserem Impressum, den Allgemeinen Geschäftsbedingungen, den Hinweisen zum Datenschutz und nutzungsbasierter Online-Werbung.