
Crozilla.com
Materra Real Estate
+38 ···
Nr. anzeigenPreise & Kosten
Provision für Käufer
Bitte beachte, das Angebot kann bei Vertragsabschluss die Zahlung einer Provision beinhalten. Weitere Informationen erhältst Du vom Anbieter.
Wohnanlage
Details
Objektbeschreibung
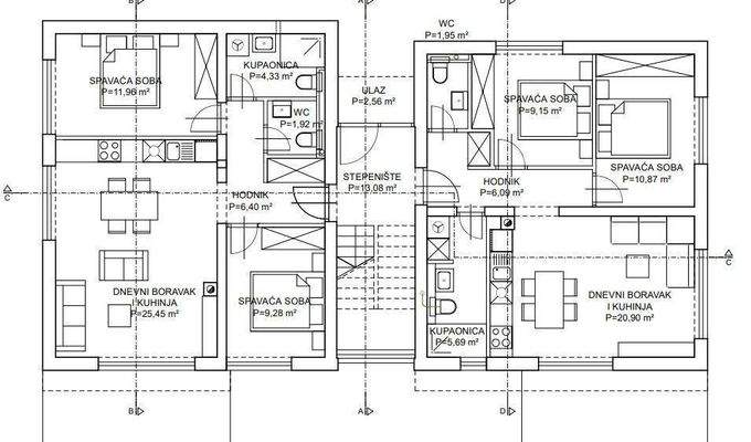
Zum Verkauf steht die Wohnung S2, die sich im Erdgeschoss eines modernen Neubaus im Ortsteil Brodarica, in unmittelbarer Nähe von Sibenik, befindet.
Die Gesamtfläche der Wohnung beträgt 79,40 m² und besteht aus einem Eingangsbereich, einem Wohnzimmer mit Küche und Essbereich, zwei Schlafzimmern, einem Badezimmer, einem...
Weitere Informationen
Stichworte
Anzahl der Schlafzimmer: 2, Anzahl der Badezimmer: 1, 1 Etagen
Anbieter der Immobilie
Crozilla.com
Nova cesta 60, 10000 ZAGREB
Online-ID: 2pyrb56
Referenznummer: 19644439_0
Finde Angebote wie dieses
Hier geht es zu unserem Impressum, den Allgemeinen Geschäftsbedingungen, den Hinweisen zum Datenschutz und nutzungsbasierter Online-Werbung.