
ohne-makler.net - Immobilien selbst vermarkten
Angebot von Cornelia Krüger Baufinanzierung und Immobilien
Kontaktiere den Anbieter schriftlich, es ist keine Telefonnummer hinterlegt.
Preise & Kosten
Provision für Käufer
provisionsfrei
Lage
Dieses Haus befindet sich im Süden des Stadtteils Darmstadt-Arheilgen. Straßenbahnhaltestelle, Schulen, Kindergarten, Ärzte, Einkaufsmöglichkeiten, Stadtzentrum Arheilgen, Restaurants, Sportplätze, Firma Merck sind fußläufig sehr gut zu erreichen. Nordbahnhof, Kreisverwaltung Darmstadt-Dieburg, Reitverein, Naturbadesee...
Das Haus
Kategorie
Mehrfamilienhaus
Baujahr
1967
Bezug
nach Absprache
Energie & Heizung
Warum sehe ich diese Anzeige? – Du siehst diese Anzeige basierend auf Ihrer Navigation auf unserer Website und den Suchkriterien, die du verwendet hast.
Energieausweistyp
Bedarfsausweis
Gebäudetyp
Wohngebäude
Effizienzklasse
G
Endenergiebedarf
202,00 kWh/(m²·a)
Weitere Energiedaten
Energieträger
Fernwärme
Heizungsart
offener Kamin, Zentralheizung
Details
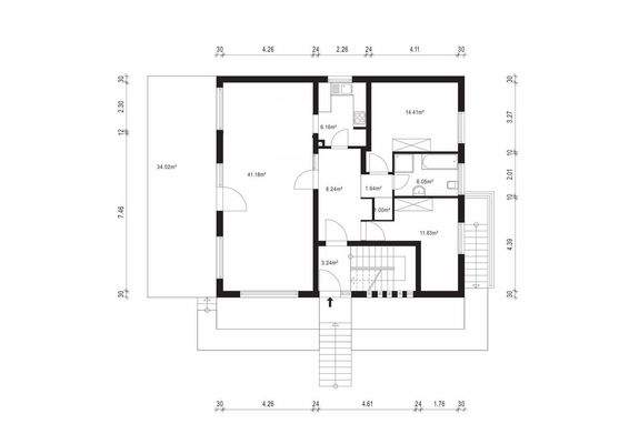
Objektbeschreibung
Dieses Zweifamilienhaus mit Flachdach besteht aus zwei fast gleich großen Wohnungen. Bereits im Treppenhaus ist zu erkennen, dass dieses Haus gut belichtet, solide gebaut und gepflegt ist.
Im Erdgeschoss befindet sich ein großes Wohn-/ Esszimmer mit Zugang zur Terrasse und einem Kaminofen, der für gemütliche Stunden...
Ausstattung
Balkon, Terrasse, Garten, Keller, Duschbad, Sauna, Einbauküche, Kamin
Bemerkungen:
+ freistehendes Zweifamilienhaus
+ massive Bauweise
+ zwei Vollgeschosse, Keller, Flachdach
+ 3 Zimmerwohnung/EG, Terrasse, barrierefreies Bad
+ 4 Zimmerwohnung/OG, verglaster Balkon, Vollbad
+ zusätzlicher Kaminofen...
Preisinformation
2 Garagenstellplätze
Weitere Informationen
Sonstiges
Heizungsart: Zentralheizung
Energieträger: Fernwärme
Der Verkauf ist für den Käufer provisionsfrei. Das Haus wird aktuell nur noch im OG genutzt und kann nach Absprache zeitnah übergeben werden.
Alle Angaben sind ohne Gewähr und basieren ausschließlich auf Informationen, die mir von den...
Dokumente
Anbieter der Immobilie
ohne-makler.net - Immobilien selbst vermarkten
Humboldtstr. 25 A, 21509 Glinde
Angebot von Cornelia Krüger Baufinanzierung und Immobilien
Dein Ansprechpartner
Kontaktiere den Anbieter schriftlich, es ist keine Telefonnummer hinterlegt.
Online-ID: 2pyn953
Referenznummer: 400945
Finde Angebote wie dieses
Hier geht es zu unserem Impressum, den Allgemeinen Geschäftsbedingungen, den Hinweisen zum Datenschutz und nutzungsbasierter Online-Werbung.