

K&S Immobilienberatung GmbH
Firma Ihr K&S Team
034 ···
Nr. anzeigenPreise & Kosten
zzgl. Nebenkosten
Provision für Mieter
Die Vergütung bei der Vermittlung dieser Immobilie trägt ausschließlich der Vermieter. inkl. MwSt.
Die Provision wird vom Vermieter getragen.
Warum sehe ich diese Anzeige? – Du siehst diese Anzeige basierend auf Ihrer Navigation auf unserer Website und den Suchkriterien, die du verwendet hast.
Lage
Der Chemiepark Bitterfeld-Wolfen in der Stadt Bitterfeld-Wolfen (Sachsen-Anhalt) ist der älteste Chemiepark Deutschlands und einer der größten in Europa. Nach der politischen Wende in der DDR wurden das ehemalige Kombinat VEB Chemiekombinat Bitterfeld (CKB) und das Fotochemische Kombinat (FCK) mit Sitz in Wolfen aufgelöst und...
Das Objekt
Baujahr
1963
Energie & Heizung
Warum sehe ich diese Anzeige? – Du siehst diese Anzeige basierend auf Ihrer Navigation auf unserer Website und den Suchkriterien, die du verwendet hast.
Wärme
Strom
Energieausweistyp
Bedarfsausweis
Gebäudetyp
Nicht-Wohngebäude
Baujahr laut Energieausweis
1963
Gültigkeit
bis 23.05.2026
Endenergiebedarf (Wärme)
228,70 kWh/(m²·a)
Endenergiebedarf (Strom)
56,10 kWh/(m²·a)
Details
Objektbeschreibung
Das Objekt befindet sich im ChemiePark Bitterfeld-Wolfen im Areal A. Die Standorte sind zum Teil genehmigungsfähig nach dem Bundesimmissionsschutzgesetz.
Die angebotenen Labore verfügen über eine Größe von 35 m² bis 156 m². In Summe ist eine ca. 700 m² große Laborfläche verfügbar.
Bei einer Anmietung ist die...
Ausstattung
- Fließen
- Personenaufzug
- Lastenaufzug
- Stellplatz kann gemietet werden
- Alarmanlage
- Brandmeldeanlage
- Einbruchmeldeanlage
- Wasser / VE-Wasser
- Laborabwasser
- Laborabzüge (z.T. begehbar) mit zentraler Lüftungsanlage
- Kraftstrom am Arbeitsplatz
- Chemikalienlager
- Umkleideräume...
Weitere Informationen
Sonstiges
Die Angaben zu dieser Immobilie beruhen auf Aussagen und Unterlagen des Eigentümers. Der Makler übernimmt für die Richtigkeit dieser Angaben keine Haftung.
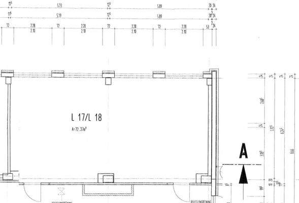
Bei den im Exposé dargestellten Grundrissen handelt es sich ausdrücklich um Grundrissskizzen, die lediglich dem Verständnis der Raumaufteilung dienen...
Anbieter der Immobilie

Online-ID: 2pymd54
Referenznummer: 11371/1
Finde Angebote wie dieses
Hier geht es zu unserem Impressum, den Allgemeinen Geschäftsbedingungen, den Hinweisen zum Datenschutz und nutzungsbasierter Online-Werbung.