

Wullkopf&Eckelmann Immobilien GmbH & Co. KG
Frau Lisa Panther
+49 ···
Nr. anzeigenPreise & Kosten
Provision für Käufer
3,57 % Käufer-Provision (inkl. MwSt.)
Mit dem Verkäufer ist eine Provision in der selben Höhe vereinbart.
Lage
Die Immobilie befindet sich im Hamburger Stadtteil Schnelsen im beliebten Bezirk Eimsbüttel. Die Umgebung ist geprägt von Ein- und Zweifamilienhäusern sowie kleineren Wohnanlagen und bietet eine gewachsene Wohnstruktur mit guter Infrastruktur.
In der näheren Umgebung befinden sich zahlreiche Einkaufsmöglichkeiten für den...
Das Haus
Kategorie
Bungalow
Baujahr
1952
Energie & Heizung
Warum sehe ich diese Anzeige? – Du siehst diese Anzeige basierend auf Ihrer Navigation auf unserer Website und den Suchkriterien, die du verwendet hast.
Energieausweistyp
Bedarfsausweis
Gebäudetyp
Wohngebäude
Wesentliche Energieträger
Gas
Gültigkeit
06.08.2025 bis 06.08.2025
Effizienzklasse
E
Endenergiebedarf
133,90 kWh/(m²·a)
Weitere Energiedaten
Energieträger
Gas
Details
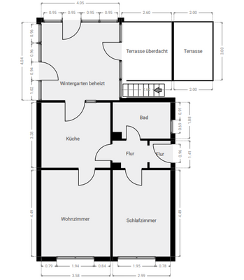
Objektbeschreibung
Dieser Bungalow in Hamburg-Schnelsen bietet eine ideale Grundlage zur Verwirklichung eigener Wohnideen. Auf ca. 82,18 m² Wohnfläche verteilen sich zwei gut geschnittene Zimmer sowie ein heller Wintergarten.
Der sonnige Garten mit Süd-Ost-Ausrichtung und die überdachte Terrasse schaffen eine angenehme Verbindung...
Ausstattung
Der Bungalow überzeugt durch eine funktionale und gut durchdachte Raumaufteilung auf einer Ebene, die ein komfortables und weitgehend barrierearmes Wohnen ermöglicht. Die beiden gut geschnittenen Zimmer lassen sich flexibel als Wohn-, Schlaf- oder Arbeitsbereich gestalten.
Ein besonderes Highlight ist der helle...
Preisinformation
2 Carportplätze
Weitere Informationen
Sonstiges
Interesse geweckt? So erhalten Sie sofort das vollständige Exposé inklusive der Objektanschrift - auch außerhalb unserer regulären Geschäftszeiten:
Nutzen Sie einfach das Kontaktformular und senden uns eine Anfrage zu. Bitte beachten Sie, dass das Formular vollständig mit Nennung Ihrer Adresse ausgefüllt...
Anbieter der Immobilie
Wullkopf&Eckelmann Immobilien GmbH & Co. KG
Friesenweg 5, 22763 Hamburg-Ottensen

Online-ID: 2pyep57
Referenznummer: 7744
Finde Angebote wie dieses
Hier geht es zu unserem Impressum, den Allgemeinen Geschäftsbedingungen, den Hinweisen zum Datenschutz und nutzungsbasierter Online-Werbung.