
Crozilla.com
Eurovilla
+38 ···
Nr. anzeigenPreise & Kosten
Provision für Käufer
Bitte beachte, das Angebot kann bei Vertragsabschluss die Zahlung einer Provision beinhalten. Weitere Informationen erhältst Du vom Anbieter.
Die Wohnung
Wohnungslage
1. Geschoss
Details
Objektbeschreibung
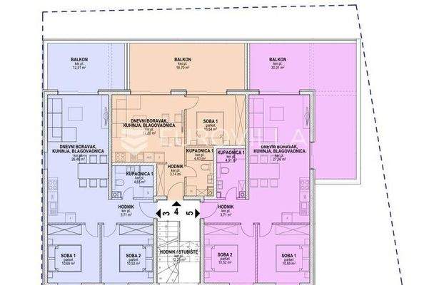
Predstavljamo Vam projekt vrhunske novogradnje u Povljani na otoku Pagu na top lokaciji! Projekt se sastoji od zgrade s 8 jedinica stambene namjene rasporedenih na ukupno 3 etaze. Zgrada je udaljena svega 180 m od mora i popularnih pjescanih plaza ovog mjesta. Takoder, u neposrednoj blizini se nalazi i centar Povljane kao i...
Weitere Informationen
Stichworte
Anzahl der Schlafzimmer: 2, 1 Etagen
Anbieter der Immobilie
Crozilla.com
Nova cesta 60, 10000 ZAGREB
Online-ID: 2pyce59
Referenznummer: 18715981_5
Finde Angebote wie dieses
Hier geht es zu unserem Impressum, den Allgemeinen Geschäftsbedingungen, den Hinweisen zum Datenschutz und nutzungsbasierter Online-Werbung.