
Zelle Immobilien + Finanzberatung GmbH
Frau Chantal Meyerholz
004 ···
Nr. anzeigenPreise & Kosten
Kaution
2.200,00
Warum sehe ich diese Anzeige? – Du siehst diese Anzeige basierend auf Ihrer Navigation auf unserer Website und den Suchkriterien, die du verwendet hast.
Lage
Die verkehrsgünstige Lage zwischen B6 und Bahnhof sowie zwischen Stadt und Hachepark ist für Groß und Klein von Vorteil.
In Syke finden Sie alles, was Sie zum täglichen Leben brauchen. Gute Einkaufs- und Freizeitmöglichkeiten, einige ausgewählte Kulturangebote und eine bunte Vielfalt an Gastronomie. Eine gute...
Das Haus
Kategorie
Reihenendhaus
Baujahr
1992
Bezug
01.06.2026
Energie & Heizung
Warum sehe ich diese Anzeige? – Du siehst diese Anzeige basierend auf Ihrer Navigation auf unserer Website und den Suchkriterien, die du verwendet hast.
Energieausweistyp
Bedarfsausweis
Gebäudetyp
Wohngebäude
Baujahr laut Energieausweis
1992
Wesentliche Energieträger
GAS
Effizienzklasse
E
Endenergiebedarf
134,60 kWh/(m²·a)
Weitere Energiedaten
Energieträger
Gas
Heizungsart
Zentralheizung
Details
Objektbeschreibung
Dieses tolle Reihenendhaus steht in einer ruhigen Wohnsiedlung direkt im Zentrum von Syke. Schon beim Öffnen der Haustür erwartet Sie ein lichtdurchfluteter großzügiger Eingangsbereich. Im Erdgeschoss befindet sich ein Gäste-WC, ein kleiner Abstellraum unter der Treppe sowie ein großzügiger Wohnbereich mit Zugang zur Terrasse...
Ausstattung
- Massivbauweise mit Klinker-Außenfassade
- Haustür in Kunststoff
- isolierverglaste Kunststofffenster
- Gas-Zentralheizung (WW über Boiler)
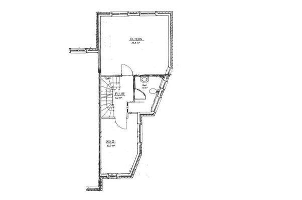
- 5 Zimmer (siehe Grundriss)
- Gäste-WC
- Tageslichtbad mit bodengleicher Dusche und WC
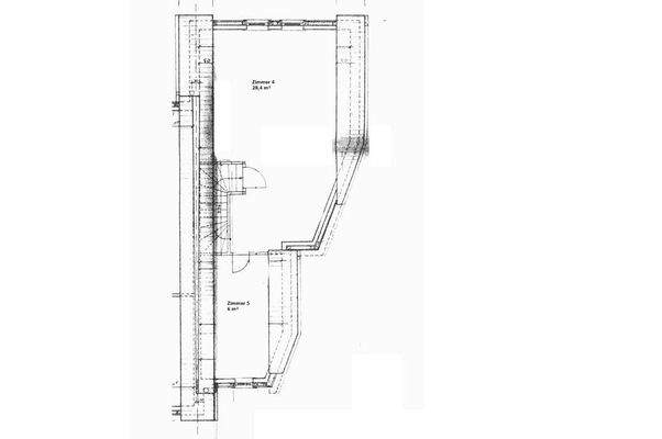
- ausgebauter Spitzboden (2 Zimmer)
- Waschmaschinenanschluss in der...
Preisinformation
2 Stellplätze
Weitere Informationen
Stichworte
Stellplatz vorhanden, Anzahl der Schlafzimmer: 3
Anbieter der Immobilie
Zelle Immobilien + Finanzberatung GmbH
Barrier Str. 6, 28857 Syke
Online-ID: 2py8n57
Referenznummer: 2533
Finde Angebote wie dieses
Hier geht es zu unserem Impressum, den Allgemeinen Geschäftsbedingungen, den Hinweisen zum Datenschutz und nutzungsbasierter Online-Werbung.