NeWCoM GmbH - Detlef Wölk

Herr Gero Gerhards

Ihr großes Zweifamilienhaus in Porz-Eil mit großem Garten

€ 793.000
Kaufpreis
192 m²
Wohnfläche ca.
k.A.
Zimmer
720 m²
Grundstücksfl. ca.

Der Anbieter dieses Objekts hat gegenüber der AVIV Germany GmbH als Betreiber dieses Online-Marktplatzes erklärt, nicht als Unternehmer im Sinne des § 1 KSchG zu handeln. Die im Verbraucherschutzrecht der Union verankerten Verbraucherrechte (insbesondere Informationspflichten und Rücktritts- bzw. Widerrufsrechte) finden auf den Vertrag zwischen dem Anbieter des Objekts und Ihnen (dem Interessenten) keine Anwendung.

Gewerblicher Anbieter

Der Anbieter dieses Objekts hat gegenüber der AVIV Germany GmbH als Betreiber dieses Online-Marktplatzes erklärt, als Unternehmer im Sinne des § 1 KSchG zu handeln.

AdresseFrankfurter Str. 678
51145 Köln 
(Eil)
Auf Karte ansehen

Preise & Kosten

Kaufpreis € 793.000 x-fache Miete 23

Provision für Käufer

Bitte beachte, das Angebot kann bei Vertragsabschluss die Zahlung einer Provision beinhalten. Weitere Informationen erhältst Du vom Anbieter.

Lage

Das ca. 720m² große Baugrundstück liegt in Porz-Eil. Das Grundstück sieht eine Bebauung an das rechte Nachbarhaus vor.

Das sehr lange Grundstück bietet den großen Vorteil, dass der Blick in Ihren Garten in die Ferne gehen kann und Sie nicht direkt auf ein dahinterliegendes Haus schauen! Zwei alte Bäume spenden...

Mehr anzeigen

Das Renditeobjekt

Kategorie

Mehrfamilienhaus

Baujahr

2026

  • Neubau, Erstbezug

Energie & Heizung

Weitere Energiedaten

Heizungsart

Fußbodenheizung, Luft-/Wasser-Wärmepumpe

Details

Objektbeschreibung

Nutzen Sie Ihre Chance auf den Erwerb eines 2-Familienhauses in Energieeffizienzklasse A in vermietungssicherer Lage von Porz-Eil!

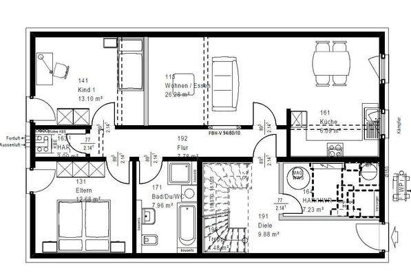
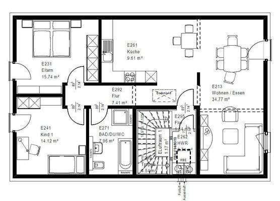
Unser Zweifamilienhaus Generation 2V2 besteht aus einer Wohnung im Erdgeschoss und einer zweiten Wohnung im Obergeschoss mit einer Nettogrundfläche von zusammen ca. 192m². Das Haus wird an...

Mehr anzeigen

Ausstattung

Unsere Häuser überzeugen durch nachhaltige Bauweise und hochwertige Ausstattung. Sie profitieren von einer Energieeffizienzwand, die optimale Wärmeisolierung garantiert, sowie einer modernen Fußbodenheizung, die gleichmäßige Wärme im gesamten Wohnbereich spendet. Die Luft-Wasser-Wärmepumpe sorgt nicht nur für...

Mehr anzeigen

Preisinformation

Soll-Mieteinnahmen pro Jahr: 34.272,00 EUR

Weitere Informationen

Sonstiges
Der Angebotspreis beinhaltet bereits folgende Kosten für das Neubauprojekt:
- Hauspreis für die angegebene Ausbaustufe
- Grundstück
- geschätzte Abrisskosten für das Bestandsgebäude

Nur die Bau- und Kaufnebenkosten sind noch zu berücksichtigen!

Stichworte
Wohnfläche: 168,00 m²...

Mehr anzeigen

Anbieter der Immobilie

Partner

NeWCoM GmbH - Detlef Wölk

Militscher Straße 29, 53881 Euskirchen

user

Herr Gero Gerhards

Dein Ansprechpartner

Anbieter-Website Anbieter-Profil Anbieter-Impressum

Online-ID: 2py7n57

Referenznummer: 20250303GGG2V2

Finde Angebote wie dieses

imageimageimage

Hier geht es zu unserem Impressum, den Allgemeinen Geschäftsbedingungen, den Hinweisen zum Datenschutz und nutzungsbasierter Online-Werbung.