

ÄRZTE & APOTHEKER IMMOBILIEN
Herr Holger Laube
017 ···
Nr. anzeigenPreise & Kosten
Provision für Käufer
2,99% inkl. MwSt. vom notariellen Kaufpreis inkl. MwSt.
Lage
Attraktive Lage zwischen Schlei und Ostsee
Die Wohnung befindet sich in ruhiger Seitenlage nahe des östlichen Schleiufers in Kappeln - einer der begehrtesten Küstenstädte Schleswig-Holsteins. Hier verbindet sich maritimes Lebensgefühl mit hoher Wohn- und Lebensqualität. Die Schlei, einer der schönsten Ostseefjorde...
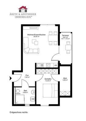
Die Wohnung
Wohnungslage
Erdgeschoss
Bezug
sofort
Wohnanlage
Energie & Heizung
Warum sehe ich diese Anzeige? – Du siehst diese Anzeige basierend auf Ihrer Navigation auf unserer Website und den Suchkriterien, die du verwendet hast.
Energieausweistyp
Bedarfsausweis
Gebäudetyp
Wohngebäude
Baujahr laut Energieausweis
2021
Wesentliche Energieträger
LUFTWP
Gültigkeit
bis 02.02.2031
Effizienzklasse
A+
Endenergiebedarf
23,38 kWh/(m²·a)
Weitere Energiedaten
Heizungsart
Fußbodenheizung, Luft-/Wasser-Wärmepumpe
Details
Objektbeschreibung
Alle 7 Einheiten dieses Objekts sind bei uns in der Vermarktung - alle Wohnungen und Grundrisse finden Sie auf unserer objekteigenen Website:
lüttfelderring18.ärzte-apotheker-immobilien.de
Ihr neuer Rückzugsort am Wasser - Neubauwohnung im Erstbezug zur Selbstnutzung
Willkommen in einem Zuhause, das Ruhe...
Ausstattung
. Bezugsfertiger Ausbaustand (ohne Einbauküche)
. Echtholz-Eichenparkett in Vollholzausführung im Stäbchenformat für warme & hochwertige Wohnatmosphäre
. Großzügiger, offener Wohn-/Ess-/Kochbereich mit viel Gestaltungsfreiheit für individuelle Küchenplanung
. Bodentiefe Fenster mit...
Preisinformation
1 Stellplatz, Kaufpreis: 10.000,00 EUR
Weitere Informationen
Sonstiges
Vielen Dank für Ihr Interesse an der von uns angebotenen Immobilie.
Bitte haben Sie Verständnis dafür, dass wir unseren Auftraggebern Diskretion zugesagt haben und Sie daher um die Angabe Ihrer vollständigen Kontaktdaten inkl. Ihrer Telefonnummer bitten müssen.
Gern senden wir Ihnen anschließend ein...
Anbieter der Immobilie
ÄRZTE & APOTHEKER IMMOBILIEN
Lindenstr. 29, 21335 Lüneburg

Online-ID: 2py7957
Referenznummer: 252887-1
Finde Angebote wie dieses
Hier geht es zu unserem Impressum, den Allgemeinen Geschäftsbedingungen, den Hinweisen zum Datenschutz und nutzungsbasierter Online-Werbung.