
Betac Immobilien Dr. Carola Braun
Frau Carola Braun
004 ···
Nr. anzeigenPreise & Kosten
Provision für Käufer
Je 3,57 % vom Kaufpreis inkl. MwSt. Käufer- und Verkäuferprovision
Lage
Das freistehende Zwei- bis Dreifamilienhaus befindet sich in ruhiger und gewachsener Lage von Roetgen.
Die Nähe zur Natur macht diesen Standort besonders attraktiv: Spazierwege und Waldflächen befinden sich in unmittelbarer Umgebung. Gleichzeitig sind alle Einrichtungen des täglichen Bedarfs, Kindergärten sowie...
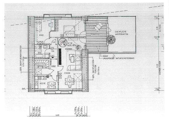
Das Haus
Kategorie
Einfamilienhaus
Baujahr
1994
Energie & Heizung
Warum sehe ich diese Anzeige? – Du siehst diese Anzeige basierend auf Ihrer Navigation auf unserer Website und den Suchkriterien, die du verwendet hast.
Energieausweistyp
Verbrauchsausweis
Gebäudetyp
Wohngebäude
Baujahr laut Energieausweis
2007
Wesentliche Energieträger
GAS
Gültigkeit
bis 18.06.2034
Effizienzklasse
D
Endenergieverbrauch
108,20 kWh/(m²·a)
Details
Objektbeschreibung
Dieses Haus passt sich Ihrem Leben an - nicht umgekehrt.
In ruhiger und gefragter Lage von Roetgen bietet es Ihnen weit mehr als nur klassischen Wohnraum.
Es eröffnet Möglichkeiten: für gemeinsames Leben über Generationen hinweg, für die Verbindung von Wohnen und Arbeiten oder für flexible Nutzungskonzepte mit...
Ausstattung
Das Haus wurde 1994 in solider Bauweise errichtet und laufend gepflegt.
· Gas-Brennwertkessel mit Warmwasserspeicher (2007)
· überwiegend Fliesen- und Parkettböden
· Granit im Treppenhaus
· erneuerte Haustüranlagen
· ausgebauter und gedämmter Speicher
· Dach des Wintergartens 2024...
Weitere Informationen
Sonstiges
Es liegt ein Energieverbrauchsausweis vor.
Dieser ist gültig bis 18.6.2034.
Endenergieverbrauch beträgt 108.20 kwh/(m²*a).
Wesentlicher Energieträger der Heizung ist Gas.
Das Baujahr des Objekts lt. Energieausweis ist 2007.
Die Energieeffizienzklasse ist D.
Alle Angaben wurden sorgfältig...
Anbieter der Immobilie
Betac Immobilien Dr. Carola Braun
Roetgenbachstraße 45, 52159 Roetgen
Online-ID: 2py5f55
Referenznummer: RoeNeu63EFH
Finde Angebote wie dieses
Hier geht es zu unserem Impressum, den Allgemeinen Geschäftsbedingungen, den Hinweisen zum Datenschutz und nutzungsbasierter Online-Werbung.