

Gründer Immobilien
Herr Ralf Gründer
049 ···
Nr. anzeigenPreise & Kosten
Provision für Käufer
provisionsfrei
Lage
Lage - Walchum: ruhig, grün und lebensnah
Die Wohnsiedlung zeichnet sich durch ihre angenehme Nachbarschaft und verkehrsberuhigte Umgebung aus. Hier kennt man sich noch - und dennoch bleibt jedem seine Ruhe.
Einkaufsmöglichkeiten, Ärzte, Apotheke und weitere Einrichtungen des täglichen Bedarfs sind bequem zu Fuß...
Das Haus
Kategorie
Mehrfamilienhaus
Baujahr
2017
Bezug
nach Vereinbarung
Derzeitige Nutzung
vermietet
Energie & Heizung
Warum sehe ich diese Anzeige? – Du siehst diese Anzeige basierend auf Ihrer Navigation auf unserer Website und den Suchkriterien, die du verwendet hast.
Energieausweistyp
Bedarfsausweis
Gebäudetyp
Wohngebäude
Wesentliche Energieträger
Erdgas leicht
Gültigkeit
11.08.2016 bis 10.08.2026
Endenergiebedarf
29,90 kWh/(m²·a)
Details
Objektbeschreibung
Zuhause mit Herz - zwei gepflegte Bungalows in ruhiger Lage von Walchum - provisionsfrei für Käufer!
In einer ruhigen und gepflegten Wohnsiedlung von Walchum, am Ende einer verkehrsarmen Sackgasse, präsentieren sich diese beiden modernen und barrierefreien Bungalow-Doppelhaushälften als ein ganz besonderes...
Ausstattung
Ausstattung & Wohngefühl
Bereits beim Betreten fällt auf, wie harmonisch und praktisch diese Immobilien gestaltet sind.
Das Wohnzimmer bildet den Mittelpunkt jeder Haushälfte - lichtdurchflutet, freundlich und mit direktem Zugang zur eigenen Terrasse, die zum Entspannen im Grünen einlädt. Hier kann man die...
Preisinformation
4 Carportplätze
Weitere Informationen
Sonstiges
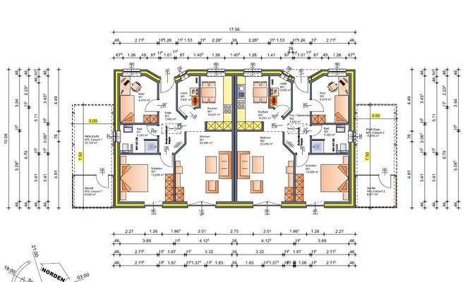
2 Doppelhaus-Bungalowhälften:
Wohnfläche je Hälfte:
Erdgeschoss:
Diele ca. 7,69 m²
Badezimmer ca. 5,32 m²
Küche ca. 10,25 m²
Wohn/Esszimmer ca. 20,30 m²
Schlafen I ca. 13,46 m²
Schlafen II ca. 8,91 m²
Hauswirtschaftsraum ca. 3,63 m²
Dachgeschoss:
Ausbaureserve /...
Anbieter der Immobilie
Gründer Immobilien
Haupstraße 97, 26892 Dörpen

Online-ID: 2py4g54
Referenznummer: 8489
Finde Angebote wie dieses
Hier geht es zu unserem Impressum, den Allgemeinen Geschäftsbedingungen, den Hinweisen zum Datenschutz und nutzungsbasierter Online-Werbung.