
immo-for-less Privat vom Eigentümer
von Privat
Kontaktiere den Anbieter schriftlich, es ist keine Telefonnummer hinterlegt.
Preise & Kosten
Provision für Käufer
Provisionsfrei ohne Courtage
Lage
Adresse: Im Burscheid 8b, 51674 Wiehl (Hückhausen)
- Fläche: 1.209 qm
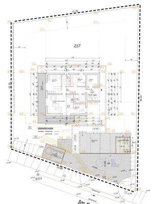
- Gemarkung/Flur/Flurstück: Weiershagen / Flur 24 / Flurstück 217
- Straßenfront: ca. 32 m
- Topographie: steil ansteigend von der Straße, dadurch wunderschöner Weitblick
Das Grundstück
Details
Objektbeschreibung
Fertig Genehmigtes 3 Familienhaus inkl. vollständiger Ausführungsplanung und Statik sind im Preis enthalten.
Es kann sofort mit dem Bau gestartet werden.
Das Grundstück hat 1.209 qm und es sind aktuell zwei fertige Garagen vorhanden die auch sofort verwendet werden können
Besonderes Highlight: Der reine...
Weitere Informationen
Sonstiges
Wohnflächen der 3 Einheiten (laut genehmigten Grundrissen)
- Wohnung 1 (EG): 101,21 qm Wohnfläche (+ 15,24 qm Nutzfläche)
- Wohnung 2 (OG): 106,86 qm Wohnfläche
- Wohnung 3 (DG): 92,22 qm Wohnfläche
- Summe Wohnfläche: ca. 300,29 qm
- Planungsrecht: genehmigt nach Paragraph 34 BauGB (gem...
Anbieter der Immobilie
immo-for-less Privat vom Eigentümer
Bierweg 19, 99310 Arnstadt
von Privat
Dein Ansprechpartner
Kontaktiere den Anbieter schriftlich, es ist keine Telefonnummer hinterlegt.
Online-ID: 2py3258
Referenznummer: 135417-[25671]
Finde Angebote wie dieses
Hier geht es zu unserem Impressum, den Allgemeinen Geschäftsbedingungen, den Hinweisen zum Datenschutz und nutzungsbasierter Online-Werbung.