
ÄRZTE & APOTHEKER IMMOBILIEN
Frau Dagmar König
004 ···
Nr. anzeigenPreise & Kosten
Provision für Käufer
3,57 % inkl. MwSt.
Lage
In einer ruhigen, gewachsenen Wohnsiedlung am Rande von Petershagen befindet sich dieses charmante Zuhause in besonders idyllischer Lage. Umgeben von gepflegten Ein- und Zweifamilienhäusern, Feldern und grünen Weiten, vermittelt das Umfeld sofort ein Gefühl von Geborgenheit und ländlicher Ruhe. Hier wohnt man fernab vom...
Das Haus
Kategorie
Einfamilienhaus
Baujahr
1999
Bezug
nach Absprache
Energie & Heizung
Warum sehe ich diese Anzeige? – Du siehst diese Anzeige basierend auf Ihrer Navigation auf unserer Website und den Suchkriterien, die du verwendet hast.
Energieausweistyp
Verbrauchsausweis
Gebäudetyp
Wohngebäude
Baujahr laut Energieausweis
1999
Wesentliche Energieträger
OEL
Gültigkeit
bis 22.10.2035
Effizienzklasse
D
Endenergieverbrauch
109,00 kWh/(m²·a)
Weitere Energiedaten
Energieträger
Öl
Heizungsart
offener Kamin
Details
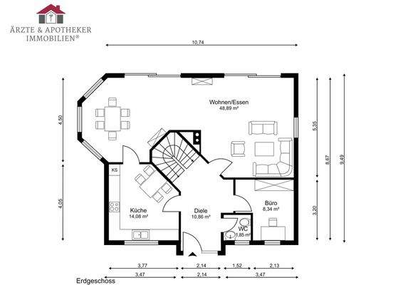
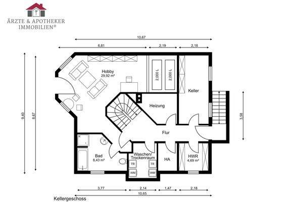
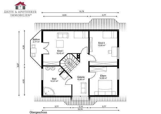
Objektbeschreibung
Dieses großzügige Anwesen präsentiert sich als wahres Juwel für Liebhaber von Raum, Komfort und Naturverbundenheit. Auf einem weitläufigen Grundstück erhebt sich ein gepflegtes Wohnhaus mit insgesamt zehn Zimmern, das mit seiner zeitlosen Architektur und der harmonischen Einbettung in die umgebende Landschaft sofort...
Ausstattung
- Großzügiges Ein- bzw. Zweifamilienhaus mit insgesamt 10 Zimmern
- ca. 2.500 m² großes Grundstück in Feldrandlage
- Parkähnlicher Garten mit Altbaumbestand
- Elektrische Rollläden an nahezu allen Fenstern
- Teilweise Parkettboden in Wohn- und Schlafräumen
- Großzügige Terrasse mit Blick in...
Preisinformation
2 Carportplätze
3 Stellplätze
Weitere Informationen
Sonstiges
Vielen Dank für Ihr Interesse an der von uns angebotenen Immobilie.
Bitte haben Sie Verständnis dafür, dass wir unseren Auftraggebern Diskretion zugesagt haben und Sie daher um die Angabe Ihrer vollständigen Kontaktdaten inkl. Ihrer Telefonnummer bitten müssen.
Gern senden wir Ihnen anschließend ein...
Anbieter der Immobilie
ÄRZTE & APOTHEKER IMMOBILIEN
Lindenstr. 29, 21335 Lüneburg
Online-ID: 2pxz957
Referenznummer: 252695-14
Finde Angebote wie dieses
Hier geht es zu unserem Impressum, den Allgemeinen Geschäftsbedingungen, den Hinweisen zum Datenschutz und nutzungsbasierter Online-Werbung.