

Rennplatz Immobilien GmbH
+49 ···
Nr. anzeigenPreise & Kosten
Provision für Käufer
provisionsfrei
Lage
Tauchen Sie ein in die Welt des modernen Wohnens in einer der begehrtesten Gegenden Regensburgs.
Das Objekt befindet sich direkt im Rennplatz Einkaufszentrum. Hier finden Sie sämtliche Einrichtungen des täglichen Bedarfs vor: einen Supermarkt, einen Drogeriemarkt, eine Poststelle, verschiedene Bäcker und Metzger...
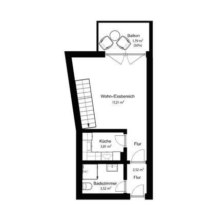
Die Wohnung
Kategorie
Maisonette
Wohnungslage
2. Geschoss
Wohnanlage
Energie & Heizung
Warum sehe ich diese Anzeige? – Du siehst diese Anzeige basierend auf Ihrer Navigation auf unserer Website und den Suchkriterien, die du verwendet hast.
Energieausweistyp
Verbrauchsausweis
Gebäudetyp
Wohngebäude
Baujahr laut Energieausweis
1995
Wesentliche Energieträger
GAS
Gültigkeit
bis 04.07.2029
Effizienzklasse
F
Endenergieverbrauch
160,00 kWh/(m²·a)
Weitere Energiedaten
Energieträger
Gas
Heizungsart
Zentralheizung
Details
Objektbeschreibung
*** 360-Grad-Rundgang der Immobilie auf Anfrage verfügbar. ***
Diese exklusiv von Rennplatz Immobilien angebotene und provisionsfreie Galerie-Wohnung befindet sich in einer im Jahre 1995 errichteten Wohnanlage im Westen von Regensburg, direkt im Rennplatz-Einkaufszentrum.
Das sanierte Objekt liegt im 2...
Ausstattung
. Echtholz-Parkettboden
. Badezimmer mit Dusche, Handtuchheizkörper und beleuchtetem Spiegelschrank
. EBK mit Kühl-/Gefrierkombination, Ofen, Herd und Spülmaschine
. Galerieebene
. elektrische Dachfenster mit Rollläden und Regensensoren
. Süd-Balkon (ca. 4 m²)
...
Preisinformation
1 Tiefgaragenstellplatz, Kaufpreis: 25.000,00 EUR
Weitere Informationen
Sonstiges
. Wir freuen uns Ihnen diese Projekt provisionsfrei anbieten zu können.
. Eine Kontaktaufnahme kann nur erfolgen, wenn bei Ihrer Anfrage eine gültige Rufnummer angegeben wird.
. Die Objektinformationen, Grundrisse etc. stammen von unserem Auftraggeber. Für die Richtigkeit und Vollständigkeit der...
Anbieter der Immobilie
Online-ID: 2pxyk57
Referenznummer: 2259
Finde Angebote wie dieses
Hier geht es zu unserem Impressum, den Allgemeinen Geschäftsbedingungen, den Hinweisen zum Datenschutz und nutzungsbasierter Online-Werbung.