
ÄRZTE & APOTHEKER IMMOBILIEN
Herr Jannek Reich
004 ···
Nr. anzeigenPreise & Kosten
Provision für Käufer
3,57 % inkl. gesetzl. MwSt.
Lage
Die Immobilie befindet sich im Lüneburger Stadtteil Rotes Feld, einer der beliebtesten innerstädtischen Wohnlagen der Hansestadt. Das Quartier zeichnet sich durch eine harmonische Mischung aus historischen Gebäuden, gepflegten Siedlungshäusern und modernen Wohnformen aus. Die Straßen sind überwiegend von altem Baumbestand...
Das Haus
Kategorie
Doppelhaushälfte
Baujahr
1952
Energie & Heizung
Warum sehe ich diese Anzeige? – Du siehst diese Anzeige basierend auf Ihrer Navigation auf unserer Website und den Suchkriterien, die du verwendet hast.
Energieausweistyp
Bedarfsausweis
Gebäudetyp
Wohngebäude
Baujahr laut Energieausweis
1952
Wesentliche Energieträger
OEL
Gültigkeit
bis 07.03.2036
Effizienzklasse
H
Endenergiebedarf
271,90 kWh/(m²·a)
Weitere Energiedaten
Energieträger
Öl
Heizungsart
Zentralheizung
Details
Objektbeschreibung
Willkommen in Ihrem neuen Zuhause im beliebten Lüneburger Stadtteil Rotes Feld - einer der gefragtesten Wohnlagen der Stadt. Diese charmante und gepflegte Doppelhaushälfte aus dem Jahr 1952 vereint klassischen Charakter mit einem angenehmen Wohnkomfort und bietet den idealen Rahmen für Familien oder Paare mit...
Ausstattung
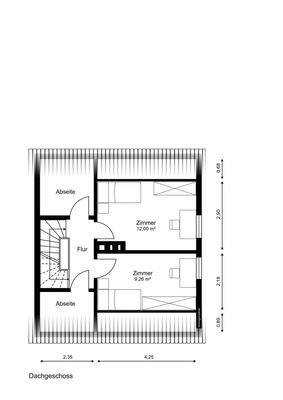
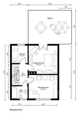
- Wohn-/ Essbereich mit Kaminofen
- Dielenboden im Obergeschoss
- Gäste-WC
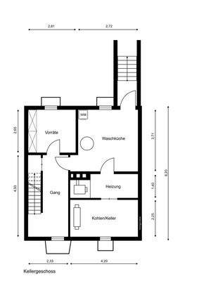
- Keller
- Öl-Zentralheizung (Bj. 1990)
- Fensterläden
- Liebevoll gestalteter Garten
- Terrasse
- Dachterrasse
Weitere Informationen
Sonstiges
Vielen Dank für Ihr Interesse an der von uns angebotenen Immobilie.
Bitte haben Sie Verständnis dafür, dass wir unseren Auftraggebern Diskretion zugesagt haben und Sie daher um die Angabe Ihrer vollständigen Kontaktdaten inkl. Ihrer Telefonnummer bitten müssen.
Gern senden wir Ihnen anschließend ein...
Anbieter der Immobilie
ÄRZTE & APOTHEKER IMMOBILIEN
Lindenstr. 29, 21335 Lüneburg
Online-ID: 2pxyh52
Referenznummer: 252845
Finde Angebote wie dieses
Hier geht es zu unserem Impressum, den Allgemeinen Geschäftsbedingungen, den Hinweisen zum Datenschutz und nutzungsbasierter Online-Werbung.