
Schmacke - Real Estate GmbH
Herr Marios Kreischer
004 ···
Nr. anzeigenPreise & Kosten
Provision für Käufer
4,76% inkl.19% ges. MwSt. zzgl. MwSt.
Lage
Iserlohn - die "Waldstadt" im Märkischen Kreis - steht für naturnahes Wohnen mit hohem Wohn- und Freizeitwert.
Die Stadt begeistert mit historischen Bauwerken, vielfältigen Kultur- und Freizeiteinrichtungen sowie über 200 Kilometern an Wanderwegen und attraktiven Ausflugszielen. Zudem überzeugt Iserlohn mit einem...
Das Haus
Baujahr
2024
Bezug
Sofort
Energie & Heizung
Warum sehe ich diese Anzeige? – Du siehst diese Anzeige basierend auf Ihrer Navigation auf unserer Website und den Suchkriterien, die du verwendet hast.
Weitere Energiedaten
Heizungsart
Fußbodenheizung, Zentralheizung
Details
Objektbeschreibung
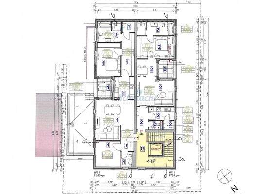
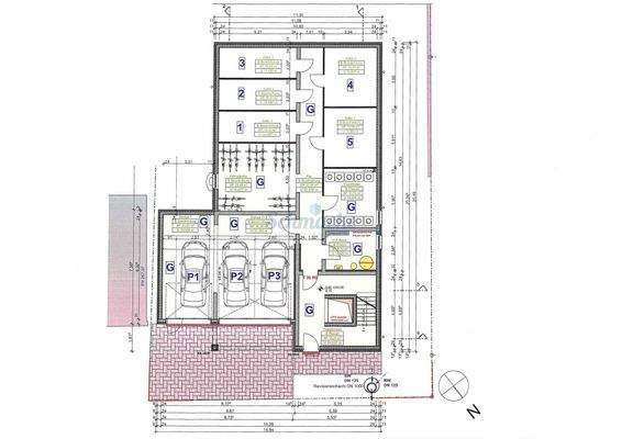
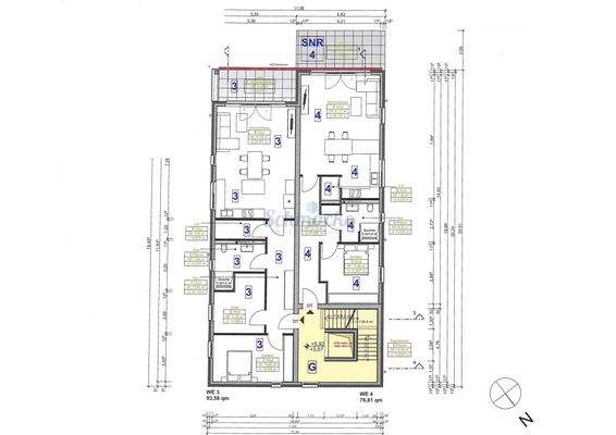
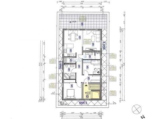
In diesem exklusiven Mehrfamilienhaus an der Oberen Mühle 32 in Iserlohn erwarten Sie fünf moderne Wohnungen mit Wohnflächen von ca. 67?m² bis ca. 105?m². Jede Einheit überzeugt durch hochwertige Ausstattung, barrierefreien Zugang und modernsten Energiestandard.
VIDEO ZUR WOHNUNG 5...
Ausstattung
- barrierefreier Zugang - sowohl zum Haus als auch zu allen Wohneinheiten
- Personenaufzug vom Keller bis zur Wohnebene
- Klingel-Gegensprechanlage mit Videomodul
- elektrische Rollläden
- genügend Steckdosen und Schalter in Weiß
- 3-fach-verglaste Fenster
- glatt verputzte Wände und Decken - in zeitlosem...
Preisinformation
4 Garagenstellplätze
Soll-Mieteinnahmen pro Jahr: 73.848,00 EUR
Ist-Mieteinnahmen pro Jahr: 56.460,00 EUR
Weitere Informationen
Sonstiges
Hinweis: Alle Angaben basieren auf Informationen, die uns vom Eigentümer zur Verfügung gestellt wurden, sowie auf eigenen Recherchen (z.?B. bei Behörden oder aus öffentlichen Unterlagen). Trotz sorgfältiger Prüfung können wir keine Gewähr für die Richtigkeit, Vollständigkeit und Aktualität übernehmen. Grundrisse...
Anbieter der Immobilie
Schmacke - Real Estate GmbH
Königsalle 92A, 40212 Düsseldorf
Online-ID: 2pxy752
Referenznummer: 371
Finde Angebote wie dieses
Hier geht es zu unserem Impressum, den Allgemeinen Geschäftsbedingungen, den Hinweisen zum Datenschutz und nutzungsbasierter Online-Werbung.