TW Wohnbau Gruppe

Herr Kim Klug

Kontaktiere den Anbieter schriftlich, es ist keine Telefonnummer hinterlegt.

****Neubau-Highlight in Jena-Nord (WE05) - Modernes Wohnen in bester Lage -EH55 Standard- Provisionsfrei ****

€ 312.136
Kaufpreis
70,94 m²
Wohnfläche ca.
3
Zimmer

Der Anbieter dieses Objekts hat gegenüber der AVIV Germany GmbH als Betreiber dieses Online-Marktplatzes erklärt, nicht als Unternehmer im Sinne des § 1 KSchG zu handeln. Die im Verbraucherschutzrecht der Union verankerten Verbraucherrechte (insbesondere Informationspflichten und Rücktritts- bzw. Widerrufsrechte) finden auf den Vertrag zwischen dem Anbieter des Objekts und Ihnen (dem Interessenten) keine Anwendung.

Provisionsfrei
Gewerblicher Anbieter

Der Anbieter dieses Objekts hat gegenüber der AVIV Germany GmbH als Betreiber dieses Online-Marktplatzes erklärt, als Unternehmer im Sinne des § 1 KSchG zu handeln.

AdresseZeitzer Straße 2
07743 Jena 
(Löbstedt)
Auf Karte ansehen

Preise & Kosten

Kaufpreis € 312.136

Provision für Käufer

provisionsfrei

Abschreibung/Anlage

als Kapitalanlage geeignet

Lage

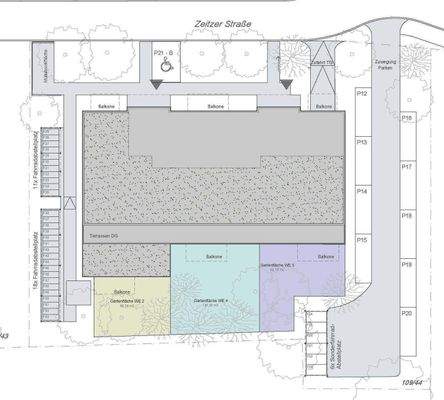
Die Immobilie befindet sich im nördlichen Teil Jenas, in der Zeitzer-Straße 2, ehem. IHK-Gelände.
Als traditionsreicher Wissenschaftsstandort mit international renommierten Forschungseinrichtungen, pulsierender Universitätsstadt und wachsendem Zentrum für Hightech-Unternehmen verbindet Jena auf einzigartige Weise Historie...

Mehr anzeigen

Die Wohnung

Wohnungslage

Erdgeschoss

Bezug

2028

  • Bad mit Fenster und Dusche
  • Balkon, Gartenanteil
  • offene Küche
  • Böden: Fliesenboden, Kunststoffboden
  • Fenster: Kunststofffenster
  • Weitere Räume: Abstellraum
  • Anschlüsse: Satellitenanschluss
  • Haustiere erlaubt

Wohnanlage

  • Baujahr: 2026
  • Zustand: Neubau
  • Personenaufzug
  • 1 Stellplatz: Außen-Stellplatz, Tiefgarage
  • Serviceleistungen: Reinigungsservice

Energie & Heizung

A+
A
B
C
D
E
F
G
H
0 25 50 75 100 125 150 175 200 225 250 +

Energieausweistyp

Verbrauchsausweis

Gebäudetyp

Wohngebäude

Baujahr laut Energieausweis

2026

Wesentliche Energieträger

Fernwärme

Effizienzklasse

B

Endenergieverbrauch

50,00 kWh/(m²·a)

Weitere Energiedaten

Energieträger

Fernwärme

Haustyp

KfW 55

Heizungsart

Fußbodenheizung

Details

Objektbeschreibung

Das Mehrfamilienhaus mit Tiefgarage verfügt über 28 Wohneinheiten (2 - 4 Raumwohnungen) mit innovativen Grundrissen in verschiedenen Größen von ca. 44 m² bis 114 m².

Die Eigentumswohnungen verteilen sich auf das Erdgeschoss, 1. - 3.Obergeschoss und das Dachgeschoss.
Über das Treppenhaus oder den Aufzug sind die...

Mehr anzeigen

Ausstattung

• moderne Heizungsanlage
• barrierefreie Zugänge und Wohnungen
• Kunststoff-Fenster entsprechend dem Gebäudeenergiegesetz
• Design Vinyl
• Fliesenböden in 60x60 cm
• elektrische Rollläden in den Wohnbereichen
• Innentüren als Röhrenspanelement und Kunststoffoberfläche in Weißlack
•...

Mehr anzeigen

Weitere Informationen

Allgemein
Durch eine Anfrage stimmen Sie unseren Datenschutzvereinbarungen (https://www.tw-wohnbau.de/datenschutz/) zu und gestatten uns Sie zu kontaktieren.

Gerne können Sie uns auch außerhalb der Geschäftszeiten via E-Mail kontaktieren.

E-Mail: verkauf@tw-wohnbau.de
https://www.tw-wohnbau.de/

Bild...

Mehr anzeigen

Anbieter der Immobilie

PartnerDiamond Partner

TW Wohnbau Gruppe

im Durchschnitt  4,60  Sterne
(bei 2 Bewertungen)

August-Bebel-Straße 5, 07743 Jena

user

Herr Kim Klug

Dein Ansprechpartner

Kontaktiere den Anbieter schriftlich, es ist keine Telefonnummer hinterlegt.

Anbieter-Profil Anbieter-Impressum

Online-ID: 2pxy557

Finde Angebote wie dieses

imageimageimage

Hier geht es zu unserem Impressum, den Allgemeinen Geschäftsbedingungen, den Hinweisen zum Datenschutz und nutzungsbasierter Online-Werbung.