

Raiffeisen Immobilien GmbH Waren
Frau Melanie Mallwitz
039 ···
Nr. anzeigenPreise & Kosten
Provision für Käufer
3,57 % inkl. MwSt.
Lage
Die Immobilie befindet sich in zentraler Lage der idyllischen Kleinstadt Neukalen, eingebettet in die reizvolle Landschaft der Mecklenburgischen Seenplatte. Die unmittelbare Umgebung ist geprägt von einer gewachsenen Wohnstruktur mit kurzen Wegen zu allen Einrichtungen des täglichen Bedarfs.
Einkaufsmöglichkeiten...
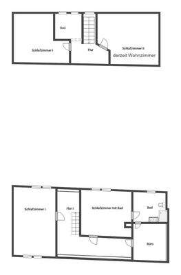
Das Haus
Energie & Heizung
Warum sehe ich diese Anzeige? – Du siehst diese Anzeige basierend auf Ihrer Navigation auf unserer Website und den Suchkriterien, die du verwendet hast.
Energieausweistyp
Verbrauchsausweis
Gebäudetyp
Wohngebäude
Weitere Energiedaten
Energieträger
Flüssiggas, Solar
Details
Objektbeschreibung
Dieses besondere Immobilienensemble in attraktiver Stadtlage von Neukalen vereint vielseitige Nutzungsmöglichkeiten mit einer naturnahen Lage unweit der Peene und des Kummerower Sees, ideal für Familien, Mehrgenerationenwohnen oder auch für clevere Kapitalanleger, die Wohnen und Vermieten kombinieren möchten.
Das...
Preisinformation
389.000 EUR
Weitere Informationen
Sonstiges
Alle in diesem Exposé enthaltenen Angaben beruhen auf Angaben des Verkäufers, die wir von diesem erhalten haben. Die Raiffeisen Immobilien GmbH Waren übernimmt hierfür keine Haftung. Gleichfalls verweisen wir auf unsere Allgemeinen Geschäftsbedingungen, die Bestandteil einer vertraglichen Zusammenarbeit mit...
Anbieter der Immobilie

Online-ID: 2pxx654
Referenznummer: 202606
Finde Angebote wie dieses
Hier geht es zu unserem Impressum, den Allgemeinen Geschäftsbedingungen, den Hinweisen zum Datenschutz und nutzungsbasierter Online-Werbung.