

SchönLife Immobilien Inh. Daniel Kerem
Herrn Daniel Kerem
030 ···
Nr. anzeigenPreise & Kosten
Provision für Käufer
7,14 % inkl. MwSt.
Das Haus
Kategorie
Mehrfamilienhaus
Baujahr
1900
Bezug
nach Vereinbarung
Derzeitige Nutzung
vermietet
Energie & Heizung
Warum sehe ich diese Anzeige? – Du siehst diese Anzeige basierend auf Ihrer Navigation auf unserer Website und den Suchkriterien, die du verwendet hast.
Energieausweistyp
Bedarfsausweis
Gebäudetyp
Wohngebäude
Wesentliche Energieträger
Erdgas leicht
Gültigkeit
09.04.2025 bis 08.04.2035
Effizienzklasse
F
Endenergiebedarf
174,50 kWh/(m²·a)
Weitere Energiedaten
Haustyp
Massivhaus
Energieträger
Gas
Heizungsart
Zentralheizung
Details
Objektbeschreibung
Das liebevoll sanierte Haus aus dem Jahre 1900 liegt in der Nähe des Seehafens von Wismar.
Es besteht aus einem Vorderhaus (4 Wohnungen)und einem begrünten Innenhof.
Das Stadtzentrum und die Flaniermeile des Hafens sind fußläufig in wenigen Minuten zu erreichen.
Dort befinden sich Einrichtungen des täglichen...
Ausstattung
Zum Verkauf steht ein saniertes Mehrfamilienhaus mit insgesamt vier möblierten Wohnungen.
Ausstattung / Merkmale:
- 211,00 m² Gesamtfläche NGF
- 253,68 m² BGF
- 181,45 m² reine Wohnfläche
- 152,00 m² Grundstücksfläche
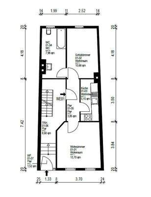
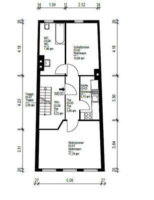
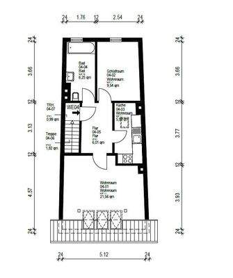
- Insgesamt 4 Wohneinheiten inklusive ausgebautem Dachgeschoss:
1...
Weitere Informationen
Sonstiges
Besichtigungstermine können Sie wie folgt anfragen:
Daniel Kerem Mobil: 0163 / 23 87 580
mail: dkerem@schoenlife.de
Stichworte
Anzahl der Schlafzimmer: 4, 3 Etagen
Dokumente
Anbieter der Immobilie
SchönLife Immobilien Inh. Daniel Kerem
Nürnberger Str. 45, 10789 Charlottenburg-Wilmersdorf

Online-ID: 2pxvu56
Referenznummer: 11550#yLtLXL
Finde Angebote wie dieses
Hier geht es zu unserem Impressum, den Allgemeinen Geschäftsbedingungen, den Hinweisen zum Datenschutz und nutzungsbasierter Online-Werbung.