
allkauf haus Südwest
Herr David Schmitt
+49 ···
Nr. anzeigenPreise & Kosten
Provision für Käufer
Bitte beachte, das Angebot kann bei Vertragsabschluss die Zahlung einer Provision beinhalten. Weitere Informationen erhältst Du vom Anbieter.
Lage
Die Doppelhaushälften befinden sich in einem attraktiven Wohngebiet in Weinheim. Die Lage bietet eine hervorragende Infrastruktur mit guter Anbindung an öffentliche Verkehrsmittel und nahegelegene Einkaufsmöglichkeiten. Freizeitmöglichkeiten wie Parks, Sportanlagen und kulturelle Angebote sind in der Umgebung reichlich...
Das Haus
Kategorie
Doppelhaushälfte
Baujahr
2026
Energie & Heizung
Warum sehe ich diese Anzeige? – Du siehst diese Anzeige basierend auf Ihrer Navigation auf unserer Website und den Suchkriterien, die du verwendet hast.
Weitere Energiedaten
Haustyp
KfW 55
Details
Objektbeschreibung
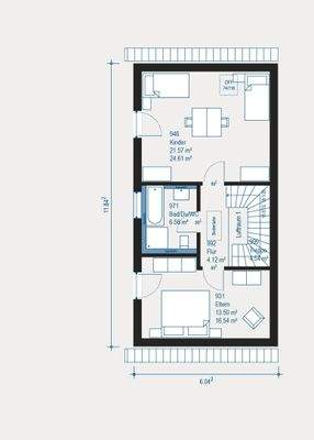
Diese projektierten Doppelhaushälften in Weinheim bieten Ihnen die perfekte Kombination aus Individualität und modernem Wohnen. Auf einem 202,80 m² großen Grundstück entstehen 3-Zimmer-Häuser mit einer Wohnfläche von 113,64 m², verteilt auf zwei Etagen. Mit zwei Schlafzimmern, einem großzügigen Badezimmer und einem...
Ausstattung
Zu den Ausstattungsmerkmalen gehören unter anderem dreifach verglaste Fenster mit Aluminiumrollläden, eine Luft-Wasser-Wärmepumpe sowie eine kontrollierte Be- und Entlüftungsanlage mit Wärmerückgewinnung, die für ein angenehmes Raumklima sorgen. Eine Echtholztreppe und hochwertige Bodenbeläge und Tapeten schaffen eine...
Weitere Informationen
Sonstiges
allkauf steht für maximale Sicherheit, kurze Lieferzeiten und garantierte Fertigstellung. Mit über 35 Jahren Erfahrung im Fertighausbau bieten wir Ihnen höchste Qualität und Planungssicherheit durch Festpreis-, Liefer- und Fertigstellungsgarantie. Unsere drei Dienstleistungspakete VIELBESCHÄFTIGTE, AMBITIONIERTE...
Anbieter der Immobilie
allkauf haus Südwest
Am Alten Schwimmbad 5, 66450 Bexbach
Online-ID: 2pxnl55
Referenznummer: 3893-393-kw13-69855
Finde Angebote wie dieses
Hier geht es zu unserem Impressum, den Allgemeinen Geschäftsbedingungen, den Hinweisen zum Datenschutz und nutzungsbasierter Online-Werbung.