
Grethe Schellmann Immobilienvermarktungs GmbH
Herr René Rudloff
004 ···
Nr. anzeigenPreise & Kosten
Provision für Käufer
3,57% inkl. MwSt.
Lage
Die Immobilie befindet sich im Gewerbegebiet vom Ortsteil Augsfeld, einem attraktiven Stadtteil der Kreisstadt Haßfurt im unterfränkischen Landkreis Haßberge.
Augsfeld zeichnet sich durch eine angenehme Mischung aus gewerblichen Nutzungen, Wohnbebauung und guter Infrastruktur aus. Die Lage bietet sowohl für Kunden als...
Büro-/Praxisfläche
Kategorie
Bürofläche
Baujahr
2013
Bezug
nach Absprache
Energie & Heizung
Warum sehe ich diese Anzeige? – Du siehst diese Anzeige basierend auf Ihrer Navigation auf unserer Website und den Suchkriterien, die du verwendet hast.
Wärme
Strom
Energieausweistyp
Verbrauchsausweis
Gebäudetyp
Nicht-Wohngebäude
Baujahr laut Energieausweis
2013
Wesentliche Energieträger
ERDGAS_SCHWER
Gültigkeit
bis 06.03.2036
Endenergieverbrauch (Wärme)
86,60 kWh/(m²·a)
Endenergieverbrauch (Strom)
14,90 kWh/(m²·a)
Details
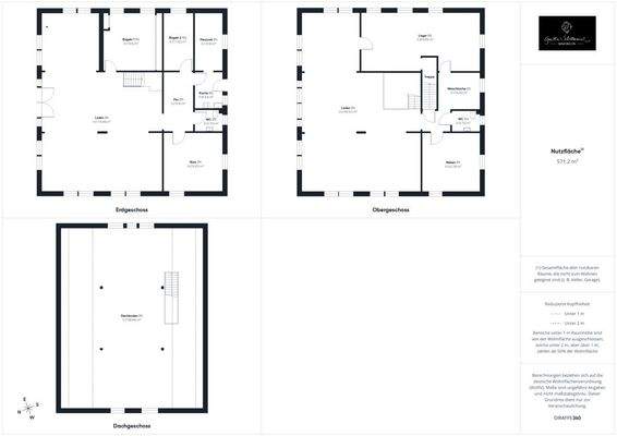
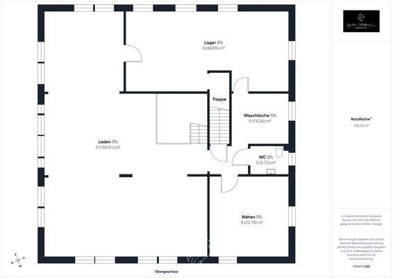
Objektbeschreibung
Dieses moderne und repräsentative Gewerbeobjekt wurde 2013 in hochwertiger Holzständerbauweise von Fachfirmen errichtet und überzeugt durch eine durchdachte Architektur, großzügige Flächen sowie vielseitige Nutzungsmöglichkeiten.
Die Immobilie wird aktuell als Brautsalon genutzt und bietet hierfür ideale...
Ausstattung
Gebäude:
- Baujahr 2013
- Hochwertige Holzständerbauweise
- Errichtet von Fachfirmen mit hohem Qualitätsstandard
- Komplett isolierte Bauweise inklusive gedämmter Bodenplatte
Dämmung / Bauqualität:
- Besonderes Augenmerk wurde auf Schall- und Wärmedämmung gelegt
- integrierte...
Weitere Informationen
Sonstiges
Gerne stehen wir Ihnen für exklusive Besichtigungstermine zur Verfügung. Termine hierfür können Sie jederzeit schriftlich per E-Mail oder per Telefon mit uns vereinbaren.
Die vorliegenden Angaben sind ohne Gewähr und basieren auf Informationen, die vom Auftraggeber zur Verfügung gestellt worden sind. Es...
Anbieter der Immobilie
Online-ID: 2pxmd54
Referenznummer: 1577
Finde Angebote wie dieses
Hier geht es zu unserem Impressum, den Allgemeinen Geschäftsbedingungen, den Hinweisen zum Datenschutz und nutzungsbasierter Online-Werbung.