
McMakler GmbH
Ihr McMakler Team
080 ···
Nr. anzeigenPreise & Kosten
Provision für Käufer
Die Provision i.H.v. 3,57 % inkl. MwSt. ist mit Kaufvertragsbeurkundung fällig, sofern der Verkaufspreis über 83.000,00 € liegt.
Liegt der Verkaufspreis dagegen bei/unter 83. Weitere Informationen siehe Provisionshinweis.
Lage
Lage: Ruhige Feldrandlage in der Feldberger Seenlandschaft im Ortsteil Neuhof
Bildung und Betreuung: Mehrere Kindergärten sowie eine Schule im nahegelegenen Feldberg
Nahversorgung: Ca. 2,3 km bis 2,8 km zu Supermärkten, Apotheken, Bankfilialen und Hausärzten
Anbindung: Bushaltestelle fußläufig in ca. 250 m...
Das Haus
Kategorie
Einfamilienhaus
Baujahr
2020
Bezug
nach Absprache
Energie & Heizung
Warum sehe ich diese Anzeige? – Du siehst diese Anzeige basierend auf Ihrer Navigation auf unserer Website und den Suchkriterien, die du verwendet hast.
Energieausweistyp
Verbrauchsausweis
Gebäudetyp
Wohngebäude
Baujahr laut Energieausweis
2020
Wesentliche Energieträger
Gas
Effizienzklasse
C
Endenergieverbrauch
89,20 kWh/(m²·a)
Weitere Energiedaten
Energieträger
Gas
Heizungsart
Zentralheizung
Details
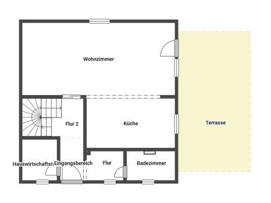
Objektbeschreibung
Objektnr: 1070405
Ihr neues Zuhause in der Feldberger Seenlandschaft - Ideal für Familien, die Ruhe, Natur und modernes Wohnen verbinden möchten: Dieses moderne Einfamilienhaus (Baujahr 2020, Effizienzhaus 55) überzeugt durch eine durchdachte Raumaufteilung, energieeffiziente Bauweise und ein großzügiges Grundstück in...
Ausstattung
+ Familienfreundliche Lage in ruhiger Feldrandlage der Feldberger Seenlandschaft OT Neuhof
+ Großzügiges, teils eingefriedetes und sichtgeschütztes Grundstück (ca. 1.370 m²)
+ Massiv gebautes Effizienzhaus 55 (Baujahr 2020) in sehr gepflegtem Zustand
+ Moderne Ausstattung: Fußbodenheizung, Lüftungsanlage mit...
Weitere Informationen
Provisionshinweis
Die Provision i.H.v. 3,57 % inkl. MwSt. ist mit Kaufvertragsbeurkundung fällig, sofern der Verkaufspreis über 83.000,00 € liegt.
Liegt der Verkaufspreis dagegen bei/unter 83.000,00 €, ist die fest vereinbarte Mindestprovision i.H.v. mind. 5.950,00 € inkl. MwSt. mit Kaufvertragsbeurkundung fällig...
Anbieter der Immobilie
McMakler GmbH
Am Postbahnhof 17, 10243 Berlin
Online-ID: 2pxlc56
Referenznummer: ca551b3e9d
Finde Angebote wie dieses
Hier geht es zu unserem Impressum, den Allgemeinen Geschäftsbedingungen, den Hinweisen zum Datenschutz und nutzungsbasierter Online-Werbung.