

Dous Immobilien GmbH
Frau Pamela Lorenz
004 ···
Nr. anzeigenPreise & Kosten
Provision für Käufer
3,57 % inkl. MwSt.
Lage
Die Immobilie befindet sich in Scharmbeck, einem Ortsteil von der Stadt Winsen. Scharmbeck überzeugt mit einer guten Anbindung und einer familienfreundlichen Infrastruktur. So befindet sich ein Kindergarten und Schulbushaltestellen direkt im Ort und es gibt eine Autobahnanbindung. Der nächste Bahnhof befindet sich im...
Das Haus
Kategorie
Einfamilienhaus
Baujahr
2000
Energie & Heizung
Warum sehe ich diese Anzeige? – Du siehst diese Anzeige basierend auf Ihrer Navigation auf unserer Website und den Suchkriterien, die du verwendet hast.
Energieausweistyp
Verbrauchsausweis
Gebäudetyp
Wohngebäude
Baujahr laut Energieausweis
2000
Wesentliche Energieträger
GAS
Gültigkeit
bis 02.03.2036
Effizienzklasse
C
Endenergieverbrauch
85,00 kWh/(m²·a)
Weitere Energiedaten
Haustyp
Massivhaus
Energieträger
Gas
Heizungsart
Zentralheizung
Details
Objektbeschreibung
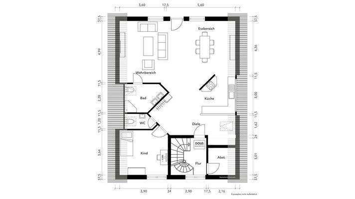
Dieses Ein- bis Zweifamilienhaus aus dem Baujahr 2000 überzeugt durch vielseitige Nutzungsmöglichkeiten und eine ruhige Wohnlage. Mit ca. 130 m² Wohnfläche im Erdgeschoss und 104 m² im Obergeschoss auf einem 650 m² großen Grundstück eignet sich die Immobilie ideal für Familien, Mehrgenerationenwohnen oder die Kombination aus...
Anbieter der Immobilie

Online-ID: 2pxhv56
Referenznummer: W-K-LG-26-014-P
Finde Angebote wie dieses
Hier geht es zu unserem Impressum, den Allgemeinen Geschäftsbedingungen, den Hinweisen zum Datenschutz und nutzungsbasierter Online-Werbung.