
Simon Immobilienwerte
Herr André Simon
+49 ···
Nr. anzeigenPreise & Kosten
Provision für Käufer
3,57% inkl. MwSt.
Lage
Mikrolage - Familiäres Idyll in Langenfeld-Richrath
Die Lage steht für ruhiges und familienfreundliches Wohnen in gewachsener Umgebung. Eingebettet in eine verkehrsberuhigte Sackgasse, bietet sie ein hohes Maß an Sicherheit und Privatsphäre - ideal für Familien mit Kindern.
Die Nachbarschaft ist geprägt von...
Das Haus
Kategorie
Reihenmittelhaus
Baujahr
1972
Bezug
sofort
Energie & Heizung
Warum sehe ich diese Anzeige? – Du siehst diese Anzeige basierend auf Ihrer Navigation auf unserer Website und den Suchkriterien, die du verwendet hast.
Energieausweistyp
Bedarfsausweis
Gebäudetyp
Wohngebäude
Wesentliche Energieträger
Erdgas schwer
Gültigkeit
18.03.2026 bis 18.03.2036
Effizienzklasse
E
Endenergiebedarf
131,60 kWh/(m²·a)
Weitere Energiedaten
Energieträger
Gas
Details
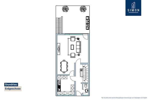
Objektbeschreibung
Dieses charmante Reihenmittelhaus im Erbbaurecht aus dem Baujahr 1972 befindet sich auf einem ca. 211 m² großen Grundstück in begehrter Süd-Ausrichtung und überzeugt durch seine klassische Aufteilung sowie ein attraktives Entwicklungspotenzial.
Die Wohnfläche von ca. 99 m² erstreckt sich über das Erd- und Obergeschoss...
Ausstattung
. Reihenmittelhaus in ruhiger Wohnlage
.Baujahr 1972
.Erbbaurecht mit Restlaufzeit bis 2071 (ca. 45 Jahre)
. Ca. 99 m² Wohnfläche (EG + OG)
. Ca. 32 m² zusätzliche Nutzfläche nach DIN 277 im Dachgeschoss
.Voll unterkellert mit Außenzugang zum Garten
.211 m² Grundstück
.Attraktive...
Preisinformation
1 Garagenstellplatz
Weitere Informationen
Sonstiges
Hinweise:
Erbbaurecht
Im Hinblick auf das indexierte Erbbaurecht, welches noch bis 2071 (rund 45 Jahre) bestellt ist, wird empfohlen, sich bereits vor einer Kontaktaufnahme mit den entsprechenden Rahmenbedingungen vertraut zu machen. Aktuell liegt der Erbbauzins bei €...
Anbieter der Immobilie
Simon Immobilienwerte
Kamper Weg 237c, 40627 Düsseldorf
Online-ID: 2pxgn52
Referenznummer: 24#j3SGw
Finde Angebote wie dieses
Hier geht es zu unserem Impressum, den Allgemeinen Geschäftsbedingungen, den Hinweisen zum Datenschutz und nutzungsbasierter Online-Werbung.