
Crozilla.com
Opereta
+38 ···
Nr. anzeigenPreise & Kosten
Provision für Käufer
Bitte beachte, das Angebot kann bei Vertragsabschluss die Zahlung einer Provision beinhalten. Weitere Informationen erhältst Du vom Anbieter.
Die Immobilie
Zu diesem Angebot wurden vom Anbieter keine weiteren Daten hinterlegt. Für weitere Informationen bitte den Anbieter kontaktieren.
Nach Informationen fragenDetails
Objektbeschreibung
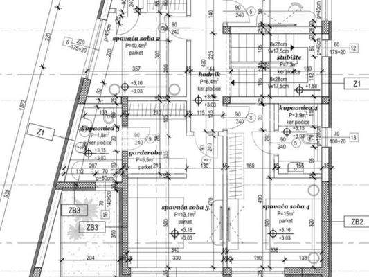
KLIS, PANORAMALAGE ÜBER SPLIT Baugrundstück mit Projekt für eine Luxusvilla mit Pool
In einzigartiger Panoramalage oberhalb von Split, in Klis, befindet sich ein exklusives Baugrundstück mit einer Fläche von 580 m und einem Projekt für den Bau einer modernen Luxusvilla mit Pool und Garage, sorgfältig konzipiert, um...
Weitere Informationen
Stichworte
Wohnfläche: 580,00 m², 1 Etagen
Anbieter der Immobilie
Crozilla.com
Nova cesta 60, 10000 ZAGREB
Online-ID: 2px8d58
Referenznummer: 19545741_2
Finde Angebote wie dieses
Hier geht es zu unserem Impressum, den Allgemeinen Geschäftsbedingungen, den Hinweisen zum Datenschutz und nutzungsbasierter Online-Werbung.