

Volker Engels Immobilien aller Art
Herr Volker Engels
075 ···
Nr. anzeigenPreise & Kosten
Provision für Käufer
provisionsfrei
Lage
Das Haus befindet sich in einer ruhigen und schmalen Nebenstraße ohne Durchgangsverkehr. In unmittelbarer Nähe zur Innenstadt erreichen sie barrierefrei das malerische Zentrum von Wangen.
WANGENER MARKTTAGE
Seit Mitte des 12. Jahrhundert findet in der Altstadt einmal wöchentlich „der Mittwochsmarkt“ statt - dieser...
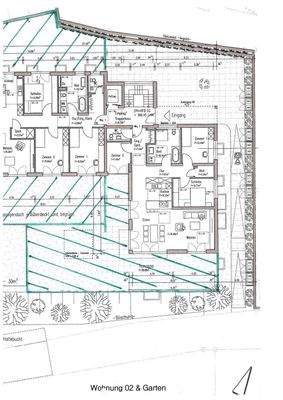
Die Wohnung
Wohnungslage
Erdgeschoss
Bezug
2027
Wohnanlage
Energie & Heizung
Warum sehe ich diese Anzeige? – Du siehst diese Anzeige basierend auf Ihrer Navigation auf unserer Website und den Suchkriterien, die du verwendet hast.
Weitere Energiedaten
Energieträger
Erdwärme
Haustyp
KfW 55
Heizungsart
Fußbodenheizung
Details
Objektbeschreibung
Objektbeschreibung
4,5 ZIMMER ERDGESCHOSS-WOHNUNG mit 125,87 m² WFL. mit GARTEN
PLATZ wie im DOPPEL- oder REIHENHAUS
= BARRIEREFREI + WOHNEN alles auf einer EBENE
ENTDECKEN SIE IHR NEUES ZUHAUSE IN EINER VERKEHRSBERUHIGTEN SCHMALEN STRASSE, NUR WENIGE GEHMINUTEN ZUM ZENTRUM VON WANGEN im ALLGÄU UND DAS...
Weitere Informationen
Besprechungstermine
Besprechungstermine immer nur nach Vereinbarung
Dokumente
Anbieter der Immobilie

Online-ID: 2px7854
Referenznummer: 24-WHG02-BW-04-2026
Finde Angebote wie dieses
Hier geht es zu unserem Impressum, den Allgemeinen Geschäftsbedingungen, den Hinweisen zum Datenschutz und nutzungsbasierter Online-Werbung.