
team19 Immobilien GmbH
Herr Benjamin Pippan
+43 ···
Nr. anzeigenPreise & Kosten
Provision für Käufer
3% des Kaufpreises zzgl. 20% USt.
Lage
Kagraner Platz, U1, Wagramer Straße, Donauzentrum, Alte Donau
Die Wohnung
Wohnungslage
6. Geschoss
Bezug
ab sofort
Wohnanlage
Energie & Heizung
Warum sehe ich diese Anzeige? – Du siehst diese Anzeige basierend auf Ihrer Navigation auf unserer Website und den Suchkriterien, die du verwendet hast.
Heizwärmebedarf (HWB)
43,60 kWh/(m²·a)
Gesamtenergieeffizienz (fGEE)
0,77
Weitere Energiedaten
Heizungsart
Fußbodenheizung, Zentralheizung
Details
Objektbeschreibung
IHR WOHNTRAUM WIRD REALITÄT - Eigengrund in Bestlage (U1 und Nähe Alte Donau) mit energieeffizienter Wärmepumpe
In hervorragender Lage des 22.Bezirks - in unmittelbarer Nähe zur U-Bahn-Linie U1 und somit mit einer ausgezeichneten Anbindung an die Wiener Innenstadt sowie die Alte Donau als auch dem...
Weitere Informationen
Stichworte
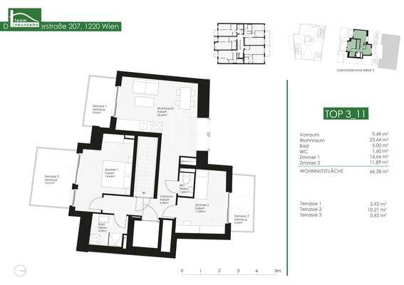
Garage vorhanden, Nord-Süd-Balkon/Terrasse, Fahrradraum, Rolladen, Nutzfläche: 88,06 m², Gesamtfläche: 88,06 m², Freifläche: 21,78 m², Anzahl der Badezimmer: 1, Anzahl der separaten WCs: 1, Anzahl Terrassen: 3, Balkon-Terrassen-Fläche: 21,78 m², Bundesland: Wien, 7 Etagen, Wohnungsnr.: 11
Sonstiges/Wohnen...
Anbieter der Immobilie
team19 Immobilien GmbH
Handelskai 94-96/21. Stock, 1200 BRIGITTENAU
Online-ID: 2px6554
Referenznummer: OBGC20260327093812473e0b1101aed
Finde Angebote wie dieses
Günstige Immobilienfinanzierung einfach online berechnen
Persönliches Angebot berechnenWarum sehe ich diese Werbung? – Du siehst diese Werbung basierend auf Deiner Navigation auf unserer Website und der von Dir verwendeten Suchkriterien.
Diese Werbung wird bezahlt von durchblicker
Werbung melden
Hier geht es zu unserem Impressum, den Allgemeinen Geschäftsbedingungen, den Hinweisen zum Datenschutz und nutzungsbasierter Online-Werbung.